Woning De Reijmer 8 Reijmerstok

De Reijmer 8, 6274NB Reijmerstok

Ontvang updates voor Reijmerstok

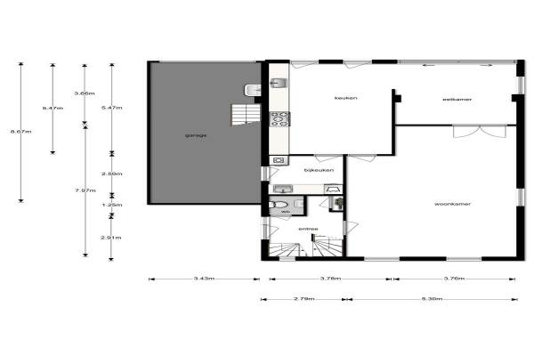
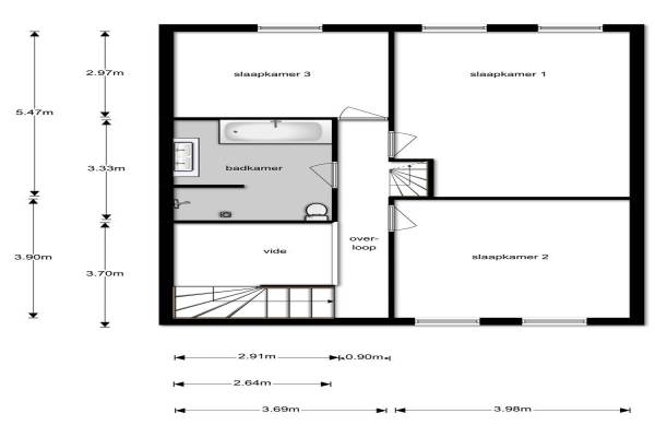
Het adres van deze woning uit 1995 is De Reijmer 8 te Reijmerstok. Het pand heeft een oppervlakte van 195m² en een perceeloppervlakte van 511m² en heeft 13 kamers kamers waarvan 4 slaapkamers. De geschatte waarde van deze woning is € 369.000.

Bekijk alle woningen in Reijmerstok

Gegevens van Eengezinswoning, vrijstaande woning

Bouwjaar
1995
Geschatte waarde
€ 369.000
Oppervlakte
195 m2
Inhoud
780 m3
Aantal kamers
13 kamers
Slaapkamers
4
Badkamers
1 badkamer en 1 apart toilet
Soort bouw
Bestaande bouw
Eigendomssituatie
Volle eigendom
Ligging
Aan rustige weg, beschutte ligging, in bosrijke omgeving, landelijk gelegen en vrij uitzicht
Tuin
Achtertuin, voortuin en zijtuin
Achtertuin
176 m² (2,2m diep en 80m breed)

Voorzieningen in de buurt

Boodschappen0,4 km
Grote supermarkt2,7 km
Cafetaria2,6 km
Restaurant0,8 km
Huisarts3,2 km
Ziekenhuis10,6 km
Kinderdagverblijf3,3 km
BSO3,6 km
Alle voorzieningen in Reijmerstok

Binnenkijken bij De Reijmer 8 te Reijmerstok

Meer meldingen in deze omgeving

112 melding
Maandag 15-12-2025 om 21:22
Reijmerstokkerdorpsstraat, 6274NL Reijmerstok

112 melding
Maandag 15-12-2025 om 21:22
Reijmerstokkerdorpsstraat, 6274NL Reijmerstok

Nieuw bedrijf
December 2025
Provincialeweg 22, 6274ND Reijmerstok

Nieuw bedrijf
December 2025
Reijmerstokkerdorpsstraat 89, 6274NH Reijmerstok

112 melding
Vrijdag 28-11-2025 om 16:18
Reijmerstokkerdorpsstraat, Reijmerstok

112 melding
Donderdag 27-11-2025 om 17:00
Reijmerstokkerdorpsstraat, Reijmerstok

112 melding
Donderdag 27-11-2025 om 17:00
Reijmerstokkerdorpsstraat, Reijmerstok

112 melding
Woensdag 26-11-2025 om 16:05
Reijmerstokkerdorpsstraat, Reijmerstok

Direct een e-mail ontvangen bij nieuwe meldingen in deze regio?

Meld je dan GRATIS aan voor de Oozo Alert service voor Reijmerstok

Instellen

Meer nieuws in Reijmerstok

Weten hoe eenvoudig het is om af te vallen? Zonder pillen en smeersels en zonder je in het zweet te werken!
Kijk op eenvoudig-afvallen.nl

© 2012 - 2026 OOZO.nl - info@oozo.nl - Gegevens verwijderen? | Disclaimer | Privacy statement