Woning De Volmer 167 Haaksbergen

De Volmer 167, 7482HR Haaksbergen

Ontvang updates voor Wolferink 5

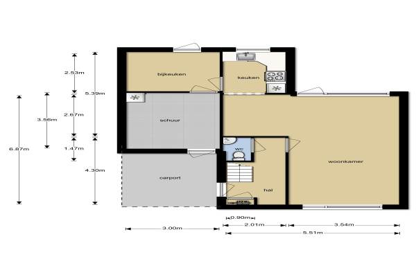
Het adres van deze woning uit 1984 is De Volmer 167 te Haaksbergen. Het pand heeft een oppervlakte van 102m² en een perceeloppervlakte van 248m² en heeft 4 kamers kamers waarvan 3 slaapkamers. De geschatte waarde van deze woning is € 198.000.

Bekijk alle woningen in Wolferink 5

Gegevens van Eengezinswoning, 2-onder-1-kapwoning

Bouwjaar
1984
Geschatte waarde
€ 198.000
Oppervlakte
102 m2
Inhoud
380 m3
Aantal kamers
4 kamers
Slaapkamers
3
Badkamers
1 badkamer en 1 apart toilet
Soort bouw
Bestaande bouw
Eigendomssituatie
Volle eigendom
Tuin
Achtertuin en voortuin
Achtertuin
91 m² (13m diep en 7m breed)

Voorzieningen in de buurt

Boodschappen1,2 km
Grote supermarkt1,2 km
Cafetaria1,8 km
Restaurant1,9 km
Huisarts1,2 km
Ziekenhuis3,0 km
Kinderdagverblijf0,6 km
BSO0,6 km
Alle voorzieningen in Wolferink 5

Binnenkijken bij De Volmer 167 te Haaksbergen

Meer meldingen in deze omgeving

Binnenkijken bij
Woensdag 29-10-2025
De Volmer 47, 7482HD Haaksbergen

Nieuw bedrijf
Oktober 2025
Warfriet 51, 7482HS Haaksbergen

112 melding
Woensdag 3-9-2025 om 15:39
De Volmer, Haaksbergen

112 melding
Woensdag 3-9-2025 om 15:38
De Volmer, Haaksbergen

Binnenkijken bij
Vrijdag 18-7-2025
De Volmer 200, 7482HC Haaksbergen

Nieuw bedrijf
Juli 2025
De Volmer 178, 7482HC Haaksbergen

Binnenkijken bij
Maandag 12-5-2025
De Volmer 1, 7482HD Haaksbergen

Binnenkijken bij
Maandag 12-5-2025
De Volmer 180, 7482HC Haaksbergen

Direct een e-mail ontvangen bij nieuwe meldingen in deze regio?

Meld je dan GRATIS aan voor de Oozo Alert service voor Wolferink 5

Instellen

Meer nieuws in Wolferink 5

Weten hoe eenvoudig het is om af te vallen? Zonder pillen en smeersels en zonder je in het zweet te werken!
Kijk op eenvoudig-afvallen.nl

© 2012 - 2025 OOZO.nl - info@oozo.nl - Gegevens verwijderen? | Disclaimer | Privacy statement