Woning Albert Cuyplaan 69 Haaksbergen

Albert Cuyplaan 69, 7482JD Haaksbergen

Ontvang updates voor Zienesch

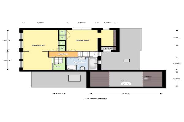
Het adres van deze woning uit 1970 is Albert Cuyplaan 69 te Haaksbergen. Het pand heeft een oppervlakte van 130m² en een perceeloppervlakte van 405m² en heeft 4 kamers kamers waarvan 2 slaapkamers. De geschatte waarde van deze woning is € 325.000.

Bekijk alle woningen in Zienesch

Gegevens van Eengezinswoning, vrijstaande woning

Bouwjaar
1970
Geschatte waarde
€ 325.000
Oppervlakte
130 m2
Inhoud
657 m3
Aantal kamers
4 kamers
Slaapkamers
2
Badkamers
1 badkamer
Soort bouw
Bestaande bouw
Eigendomssituatie
Volle eigendom
Ligging
In woonwijk en vrij uitzicht
Tuin
Achtertuin, voortuin en zijtuin
Achtertuin
95 m² (5m diep en 19m breed)

Voorzieningen in de buurt

Boodschappen0,3 km
Grote supermarkt0,3 km
Cafetaria1,0 km
Restaurant1,2 km
Huisarts0,3 km
Ziekenhuis2,1 km
Kinderdagverblijf0,8 km
BSO0,8 km
Alle voorzieningen in Zienesch

Binnenkijken bij Albert Cuyplaan 69 te Haaksbergen

Meer meldingen in deze omgeving

Binnenkijken bij
Zondag 16-11-2025
Jacob van Ruysdaelstraat 16, 7482XB Haaksbergen

Binnenkijken bij
Dinsdag 11-11-2025
Albert Cuyplaan 75, 7482JD Haaksbergen

112 melding
Dinsdag 21-10-2025 om 19:24
Zieneschstraat, Haaksbergen

112 melding
Dinsdag 21-10-2025 om 18:24
Zieneschstraat, Haaksbergen

Binnenkijken bij
Zaterdag 11-10-2025
Goorsestraat 33, 7482CB Haaksbergen

Binnenkijken bij
Zaterdag 11-10-2025
Jan Vermeerstraat 8, 7482EN Haaksbergen

Binnenkijken bij
Woensdag 1-10-2025
Adriaan van Ostadestraat 16, 7482EA Haaksbergen

Binnenkijken bij
Vrijdag 19-9-2025
Jan Vermeerstraat 17, 7482EM Haaksbergen

Direct een e-mail ontvangen bij nieuwe meldingen in deze regio?

Meld je dan GRATIS aan voor de Oozo Alert service voor Zienesch

Instellen

Meer nieuws in Zienesch

Weten hoe eenvoudig het is om af te vallen? Zonder pillen en smeersels en zonder je in het zweet te werken!
Kijk op eenvoudig-afvallen.nl

© 2012 - 2025 OOZO.nl - info@oozo.nl - Gegevens verwijderen? | Disclaimer | Privacy statement