Woning De Heikant 8 Helvoirt

De Heikant 8, 5268KP Helvoirt

Ontvang updates voor Verspreide huizen Helvoirtse Heide

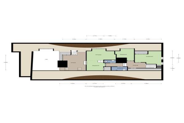
Het adres van deze woning is De Heikant 8 te Helvoirt. Het pand heeft een oppervlakte van 325m² en een perceeloppervlakte van 10895m² en heeft 10 kamers kamers waarvan 4 slaapkamers. De geschatte waarde van deze woning is € 1.650.000.

Bekijk alle woningen in Verspreide huizen Helvoirtse Heide

Gegevens van Woonboerderij, vrijstaande woning

Bouwjaar
Voor 1906
Geschatte waarde
€ 1.650.000
Oppervlakte
325 m2
Inhoud
1450 m3
Aantal kamers
10 kamers
Slaapkamers
4
Badkamers
3 badkamers en 1 apart toilet
Soort bouw
Bestaande bouw
Eigendomssituatie
Volle eigendom
Ligging
Aan bosrand, in bosrijke omgeving en landelijk gelegen
Tuin
Tuin rondom

Voorzieningen in de buurt

Boodschappen2,2 km
Grote supermarkt2,6 km
Cafetaria1,8 km
Restaurant1,6 km
Huisarts3,5 km
Ziekenhuis8,3 km
Kinderdagverblijf2,3 km
BSO2,3 km
Alle voorzieningen in Verspreide huizen Helvoirtse Heide

Binnenkijken bij De Heikant 8 te Helvoirt

Meer meldingen in deze omgeving

Nieuw bedrijf
Oktober 2025
Nieuwkuikseweg 11a, 5268LH Helvoirt

112 melding
Woensdag 24-9-2025 om 07:41
Oude Bosschebaan, 5268KS Helvoirt

112 melding
Dinsdag 23-9-2025 om 13:47
Oude Bosschebaan, 5268KS Helvoirt

112 melding
Dinsdag 23-9-2025 om 13:47
Oude Bosschebaan, 5268KS Helvoirt

Nieuw bedrijf
September 2025
Margriet 5, 5268LV Helvoirt

Nieuw bedrijf
September 2025
Margriet 5, 5268LV Helvoirt

112 melding
Zondag 7-9-2025 om 23:06
Margriet, 5268LV Helvoirt

112 melding
Vrijdag 5-9-2025 om 14:50
Margriet, 5268LV Helvoirt

Direct een e-mail ontvangen bij nieuwe meldingen in deze regio?

Meld je dan GRATIS aan voor de Oozo Alert service voor Verspreide huizen Helvoirtse Heide

Instellen

Meer nieuws in Verspreide huizen Helvoirtse Heide

Weten hoe eenvoudig het is om af te vallen? Zonder pillen en smeersels en zonder je in het zweet te werken!
Kijk op eenvoudig-afvallen.nl

© 2012 - 2025 OOZO.nl - info@oozo.nl - Gegevens verwijderen? | Disclaimer | Privacy statement