Woning Van Zeggelenstraat 57 Haarlem

Van Zeggelenstraat 57, 2032WE Haarlem

Ontvang updates voor Van Zeggelenbuurt

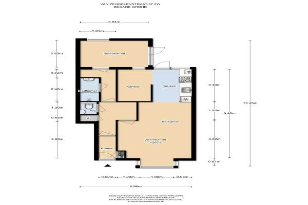
Het adres van deze woning uit 1936 is Van Zeggelenstraat 57 te Haarlem. Het pand heeft een oppervlakte van 66m² en heeft 3 kamers kamers waarvan 1 slaapkamers. De geschatte waarde van deze woning is € 250.000.

Bekijk alle woningen in Van Zeggelenbuurt

Gegevens van Benedenwoning

Bouwjaar
1936
Geschatte waarde
€ 250.000
Oppervlakte
66 m2
Inhoud
238 m3
Aantal kamers
3 kamers
Slaapkamers
1
Badkamers
1 badkamer en 1 apart toilet
Soort bouw
Bestaande bouw
Eigendomssituatie
Volle eigendom
Ligging
In woonwijk
Tuin
Achtertuin
Achtertuin
72 m² (16,71m diep en 6,03m breed)

Voorzieningen in de buurt

Boodschappen0,3 km
Grote supermarkt0,4 km
Cafetaria0,3 km
Restaurant0,4 km
Huisarts0,5 km
Ziekenhuis1,7 km
Kinderdagverblijf0,3 km
BSO0,3 km
Alle voorzieningen in Van Zeggelenbuurt

Binnenkijken bij Van Zeggelenstraat 57 te Haarlem

Meer meldingen in deze omgeving

Binnenkijken bij
Zaterdag 14-3-2026
Van Zeggelenstraat 67, 2032WG Haarlem

Binnenkijken bij
Zaterdag 14-3-2026
Vosmaerstraat 51, 2032LB Haarlem

Nieuw bedrijf
Maart 2026
Kinkerstraat 10, 2032XD Haarlem

Nieuw bedrijf
Maart 2026
Teding van Berkhoutstraat 120, 2032LP Haarlem

112 melding
Zondag 8-3-2026 om 16:16
Hasebroekstraat, Haarlem

112 melding
Maandag 2-3-2026 om 14:09
Jac. van Looystraat, Haarlem

Nieuw bedrijf
Februari 2026
Dr. Schaepmanstraat 41, 2032GC Haarlem

Binnenkijken bij
Woensdag 25-2-2026
Van Zeggelenstraat 144, 2032WL Haarlem

Direct een e-mail ontvangen bij nieuwe meldingen in deze regio?

Meld je dan GRATIS aan voor de Oozo Alert service voor Van Zeggelenbuurt

Instellen

Meer nieuws in Van Zeggelenbuurt

Weten hoe eenvoudig het is om af te vallen? Zonder pillen en smeersels en zonder je in het zweet te werken!
Kijk op eenvoudig-afvallen.nl

© 2012 - 2026 OOZO.nl - info@oozo.nl - Gegevens verwijderen? | Disclaimer | Privacy statement