Woning Hyacintenlaan 37 Haarlem

Hyacintenlaan 37, 2015BB Haarlem

Ontvang updates voor Bloemenbuurt

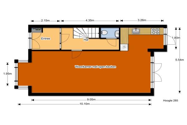
Het adres van deze woning uit 1925 is Hyacintenlaan 37 te Haarlem. Het pand heeft een oppervlakte van 145m² en een perceeloppervlakte van 171m² en heeft 6 kamers kamers waarvan 5 slaapkamers. De geschatte waarde van deze woning is € 695.000.

Bekijk alle woningen in Bloemenbuurt

Gegevens van Herenhuis, tussenwoning

Bouwjaar
1925
Geschatte waarde
€ 695.000
Oppervlakte
145 m2
Inhoud
510 m3
Aantal kamers
6 kamers
Slaapkamers
5
Badkamers
2 badkamers en 2 aparte toiletten
Soort bouw
Bestaande bouw
Eigendomssituatie
Volle eigendom
Ligging
Aan rustige weg en in woonwijk
Tuin
Achtertuin en voortuin
Achtertuin
67 m² (12,8m diep en 5,7m breed)

Voorzieningen in de buurt

Boodschappen0,4 km
Grote supermarkt0,4 km
Cafetaria0,6 km
Restaurant0,5 km
Huisarts0,6 km
Ziekenhuis3,8 km
Kinderdagverblijf0,4 km
BSO0,6 km
Alle voorzieningen in Bloemenbuurt

Binnenkijken bij Hyacintenlaan 37 te Haarlem

Meer meldingen in deze omgeving

Nieuw bedrijf
Januari 2026
Hyacintenlaan 4RD, 2015BC Haarlem

Nieuw bedrijf
Januari 2026
Narcisplantsoen 73, 2015AK Haarlem

Nieuw bedrijf
Januari 2026
Narcisplantsoen 99, 2015AL Haarlem

112 melding
Zaterdag 17-1-2026 om 21:54
Julianalaan, Haarlem

112 melding
Zaterdag 17-1-2026 om 21:18
Narcisplantsoen, Haarlem

Binnenkijken bij
Zaterdag 17-1-2026
Emmalaan 8, 2015BT Haarlem

Binnenkijken bij
Donderdag 15-1-2026
Narcisplantsoen 32, 2015AJ Haarlem

Nieuw bedrijf
Januari 2026
Emmalaan 20, 2015BT Haarlem

Direct een e-mail ontvangen bij nieuwe meldingen in deze regio?

Meld je dan GRATIS aan voor de Oozo Alert service voor Bloemenbuurt

Instellen

Meer nieuws in Bloemenbuurt

Weten hoe eenvoudig het is om af te vallen? Zonder pillen en smeersels en zonder je in het zweet te werken!
Kijk op eenvoudig-afvallen.nl

© 2012 - 2026 OOZO.nl - info@oozo.nl - Gegevens verwijderen? | Disclaimer | Privacy statement