Woning Narcisplantsoen 72 Haarlem

Narcisplantsoen 72, 2015AK Haarlem

Ontvang updates voor Bloemenbuurt

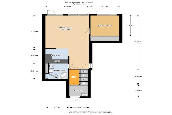
Het adres van deze woning uit 1985 is Narcisplantsoen 72 te Haarlem. Het pand heeft een oppervlakte van 60m² en heeft 2 kamers kamers waarvan 1 slaapkamers. De geschatte waarde van deze woning is € 200.000.

Bekijk alle woningen in Bloemenbuurt

Gegevens van Benedenwoning (appartement)

Bouwjaar
1985
Geschatte waarde
€ 200.000
Oppervlakte
60 m2
Inhoud
202 m3
Aantal kamers
2 kamers
Slaapkamers
1
Badkamers
1 badkamer
Soort bouw
Bestaande bouw
Eigendomssituatie
Volle eigendom
Ligging
Aan park
Tuin
Achtertuin
Achtertuin
117 m² (13m diep en 9m breed)

Voorzieningen in de buurt

Boodschappen0,4 km
Grote supermarkt0,4 km
Cafetaria0,6 km
Restaurant0,5 km
Huisarts0,6 km
Ziekenhuis3,8 km
Kinderdagverblijf0,4 km
BSO0,6 km
Alle voorzieningen in Bloemenbuurt

Binnenkijken bij Narcisplantsoen 72 te Haarlem

Meer meldingen in deze omgeving

Binnenkijken bij
Zaterdag 20-12-2025
Emmalaan 37, 2015BS Haarlem

112 melding
Woensdag 17-12-2025 om 14:47
Narcisplantsoen, Haarlem

Nieuw bedrijf
December 2025
Krokusstraat 1, 2015AD Haarlem

112 melding
Zondag 14-12-2025 om 21:15
Spoorwegstraat, 2015BL Haarlem

112 melding
Zondag 14-12-2025 om 20:55
Spoorwegstraat, 2015BL Haarlem

Nieuw bedrijf
December 2025
Regentesselaan 42, 2015BZ Haarlem

Nieuw bedrijf
December 2025
Zijlweg 148C, 2015BJ Haarlem

Binnenkijken bij
Zaterdag 6-12-2025
Narcisplantsoen 142, 2015AN Haarlem

Direct een e-mail ontvangen bij nieuwe meldingen in deze regio?

Meld je dan GRATIS aan voor de Oozo Alert service voor Bloemenbuurt

Instellen

Meer nieuws in Bloemenbuurt

Weten hoe eenvoudig het is om af te vallen? Zonder pillen en smeersels en zonder je in het zweet te werken!
Kijk op eenvoudig-afvallen.nl

© 2012 - 2025 OOZO.nl - info@oozo.nl - Gegevens verwijderen? | Disclaimer | Privacy statement