Woning Floraplein 15 Haarlem

Floraplein 15, 2012HM Haarlem

Ontvang updates voor Florapark

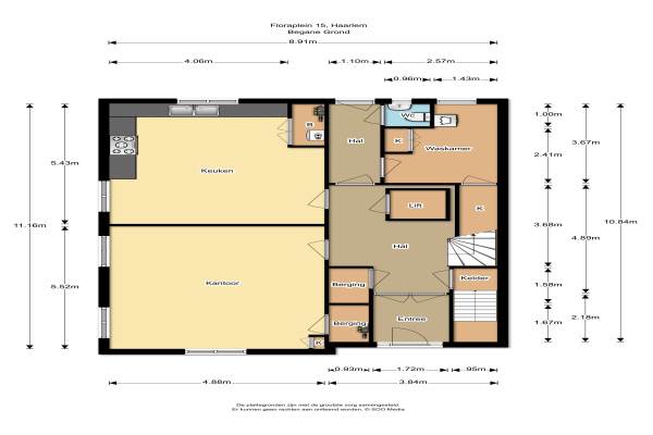
Het adres van deze woning uit 1880 is Floraplein 15 te Haarlem. Het pand heeft een oppervlakte van 414m² en een perceeloppervlakte van 350m² en heeft 11 kamers kamers waarvan 5 slaapkamers. De geschatte waarde van deze woning is € 1.750.000.

Bekijk alle woningen in Florapark

Gegevens van Herenhuis, hoekwoning

Bouwjaar
1880
Geschatte waarde
€ 1.750.000
Oppervlakte
414 m2
Inhoud
1655 m3
Aantal kamers
11 kamers
Slaapkamers
5
Badkamers
2 badkamers en 3 aparte toiletten
Soort bouw
Bestaande bouw
Eigendomssituatie
Volle eigendom
Ligging
Aan park en vrij uitzicht
Tuin
Achtertuin en zijtuin
Achtertuin
117 m² (9m diep en 13m breed)

Voorzieningen in de buurt

Boodschappen0,2 km
Grote supermarkt0,6 km
Cafetaria0,4 km
Restaurant0,2 km
Huisarts0,3 km
Ziekenhuis2,2 km
Kinderdagverblijf0,2 km
BSO0,3 km
Alle voorzieningen in Florapark

Binnenkijken bij Floraplein 15 te Haarlem

Meer meldingen in deze omgeving

Nieuw bedrijf
December 2025
Diaconessenplein 95, 2012JX Haarlem

112 melding
Donderdag 4-12-2025 om 10:13
Florapark, 2012HK Haarlem

Nieuw bedrijf
December 2025
Florapark 8F, 2012HK Haarlem

112 melding
Dinsdag 2-12-2025 om 23:41
Hazepaterslaan, Haarlem

112 melding
Vrijdag 28-11-2025 om 12:37
Meesterlottelaan, Haarlem

Binnenkijken bij
Dinsdag 25-11-2025
Hazepaterslaan 280032, 2012HT Haarlem

Faillissement
Maandag 24-11-2025
Wagenweg 13, 2012NA Haarlem

Nieuw bedrijf
November 2025
Wagenweg 13A, 2012NA Haarlem

Direct een e-mail ontvangen bij nieuwe meldingen in deze regio?

Meld je dan GRATIS aan voor de Oozo Alert service voor Florapark

Instellen

Meer nieuws in Florapark

Weten hoe eenvoudig het is om af te vallen? Zonder pillen en smeersels en zonder je in het zweet te werken!
Kijk op eenvoudig-afvallen.nl

© 2012 - 2025 OOZO.nl - info@oozo.nl - Gegevens verwijderen? | Disclaimer | Privacy statement