Woning Prins Mauritslaan 30 Haarlem

Prins Mauritslaan 30, 2012SP Haarlem

Ontvang updates voor Zuiderhout

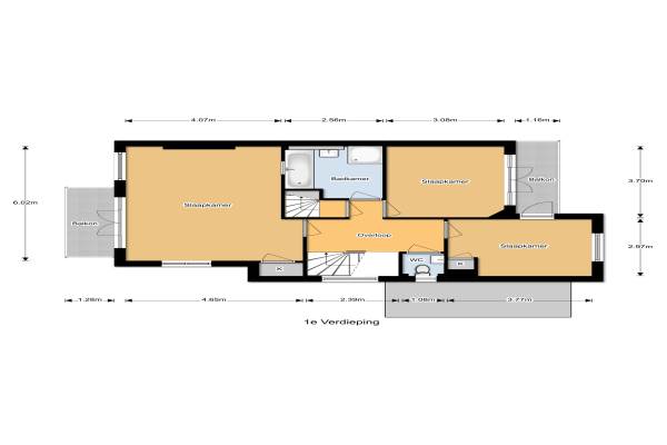
Het adres van deze woning uit 1938 is Prins Mauritslaan 30 te Haarlem. Het pand heeft een oppervlakte van 191m² en een perceeloppervlakte van 235m² en heeft 9 kamers kamers waarvan 5 slaapkamers. De geschatte waarde van deze woning is € 949.500.

Bekijk alle woningen in Zuiderhout

Gegevens van Herenhuis, 2-onder-1-kapwoning

Bouwjaar
1938
Geschatte waarde
€ 949.500
Oppervlakte
191 m2
Inhoud
804 m3
Aantal kamers
9 kamers
Slaapkamers
5
Soort bouw
Bestaande bouw
Eigendomssituatie
Volle eigendom
Tuin
Achtertuin
Achtertuin
96 m² (12m diep en 8m breed)

Voorzieningen in de buurt

Boodschappen0,6 km
Grote supermarkt0,7 km
Cafetaria0,6 km
Restaurant0,6 km
Huisarts1,0 km
Ziekenhuis1,3 km
Kinderdagverblijf0,5 km
BSO0,3 km
Alle voorzieningen in Zuiderhout

Binnenkijken bij Prins Mauritslaan 30 te Haarlem

Meer meldingen in deze omgeving

112 melding
Zaterdag 8-11-2025 om 17:11
Crayenesterlaan, Haarlem

112 melding
Zaterdag 8-11-2025 om 15:27
Emauslaan, 2012PH Haarlem

112 melding
Zaterdag 8-11-2025 om 14:39
Emauslaan, 2012PH Haarlem

112 melding
Woensdag 5-11-2025 om 13:08
Beelslaan, 2012PK Haarlem

Nieuw bedrijf
Oktober 2025
Van Oldenbarneveltlaan 11, 2012PA Haarlem

Nieuw bedrijf
Oktober 2025
Jacob van Lenneplaan 4, 2012PL Haarlem

Nieuw bedrijf
Oktober 2025
Louise de Colignylaan 5, 2012SR Haarlem

112 melding
Zaterdag 25-10-2025 om 11:36
Willem de Zwijgerlaan, Haarlem

Direct een e-mail ontvangen bij nieuwe meldingen in deze regio?

Meld je dan GRATIS aan voor de Oozo Alert service voor Zuiderhout

Instellen

Meer nieuws in Zuiderhout

Weten hoe eenvoudig het is om af te vallen? Zonder pillen en smeersels en zonder je in het zweet te werken!
Kijk op eenvoudig-afvallen.nl

© 2012 - 2025 OOZO.nl - info@oozo.nl - Gegevens verwijderen? | Disclaimer | Privacy statement