Woning Borneostraat 6 Haarlem

Borneostraat 6, 2022XN Haarlem

Ontvang updates voor Soendabuurt

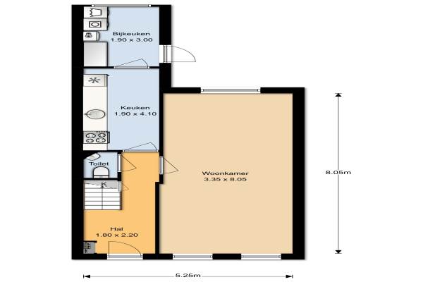
Het adres van deze woning is Borneostraat 6 te Haarlem. Het pand heeft een oppervlakte van 95m² en een perceeloppervlakte van 108m² en heeft 4 kamers kamers waarvan 3 slaapkamers. De geschatte waarde van deze woning is € 315.000.

Bekijk alle woningen in Soendabuurt

Gegevens van Eengezinswoning, tussenwoning

Geschatte waarde
€ 315.000
Oppervlakte
95 m2
Inhoud
312 m3
Aantal kamers
4 kamers
Slaapkamers
3
Badkamers
1 badkamer en 1 apart toilet
Soort bouw
Bestaande bouw
Eigendomssituatie
Volle eigendom
Ligging
In woonwijk
Tuin
Achtertuin
Achtertuin
36 m² (10,8m diep en 3,35m breed)

Voorzieningen in de buurt

Boodschappen0,3 km
Grote supermarkt0,3 km
Cafetaria0,3 km
Restaurant0,3 km
Huisarts0,4 km
Ziekenhuis3,2 km
Kinderdagverblijf0,3 km
BSO0,2 km
Alle voorzieningen in Soendabuurt

Binnenkijken bij Borneostraat 6 te Haarlem

Meer meldingen in deze omgeving

Binnenkijken bij
Woensdag 18-2-2026
Spaansevaartstraat 9, 2022XA Haarlem

Nieuw bedrijf
Februari 2026
Julianapark 64, 2022AB Haarlem

Nieuw bedrijf
Februari 2026
Javastraat 46, 2022XS Haarlem

112 melding
Maandag 16-2-2026 om 06:31
Spaansevaartstraat, Haarlem

112 melding
Donderdag 12-2-2026 om 10:20
Soendastraat, Haarlem

Binnenkijken bij
Donderdag 12-2-2026
Spaarndamseweg 3800013, 2022EA Haarlem

Binnenkijken bij
Donderdag 12-2-2026
Floresstraat 40, 2022BG Haarlem

112 melding
Zaterdag 7-2-2026 om 14:38
Spaansevaartstraat, Haarlem

Direct een e-mail ontvangen bij nieuwe meldingen in deze regio?

Meld je dan GRATIS aan voor de Oozo Alert service voor Soendabuurt

Instellen

Meer nieuws in Soendabuurt

Weten hoe eenvoudig het is om af te vallen? Zonder pillen en smeersels en zonder je in het zweet te werken!
Kijk op eenvoudig-afvallen.nl

© 2012 - 2026 OOZO.nl - info@oozo.nl - Gegevens verwijderen? | Disclaimer | Privacy statement