Woning Van Nesstraat 9 Haarlem

Van Nesstraat 9, 2024DK Haarlem

Ontvang updates voor Burgemeesterskwartier

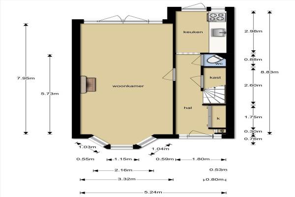
Het adres van deze woning uit 1929 is Van Nesstraat 9 te Haarlem. Het pand heeft een oppervlakte van 107m² en een perceeloppervlakte van 113m² en heeft 7 kamers kamers waarvan 4 slaapkamers. De geschatte waarde van deze woning is € 430.000.

Bekijk alle woningen in Burgemeesterskwartier

Gegevens van Eengezinswoning, hoekwoning

Bouwjaar
1929
Geschatte waarde
€ 430.000
Oppervlakte
107 m2
Inhoud
399 m3
Aantal kamers
7 kamers
Slaapkamers
4
Soort bouw
Bestaande bouw
Eigendomssituatie
Volle eigendom
Tuin
Achtertuin en voortuin
Achtertuin
54 m² (9,9m diep en 5,46m breed)

Voorzieningen in de buurt

Boodschappen0,2 km
Grote supermarkt0,3 km
Cafetaria0,2 km
Restaurant0,2 km
Huisarts0,8 km
Ziekenhuis2,5 km
Kinderdagverblijf0,3 km
BSO0,4 km
Alle voorzieningen in Burgemeesterskwartier

Binnenkijken bij Van Nesstraat 9 te Haarlem

Meer meldingen in deze omgeving

Nieuw bedrijf
November 2025
Haitsma Mulierstraat 23, 2024VC Haarlem

112 melding
Dinsdag 25-11-2025 om 20:11
Van Egmondstraat, Haarlem

112 melding
Zaterdag 22-11-2025 om 19:49
Van Egmondstraat, Haarlem

112 melding
Zaterdag 22-11-2025 om 19:49
Van Egmondstraat, Haarlem

112 melding
Zaterdag 22-11-2025 om 19:49
Van Egmondstraat, Haarlem

112 melding
Zaterdag 22-11-2025 om 10:54
Arnoldystraat, Haarlem

112 melding
Zaterdag 22-11-2025 om 10:53
Arnoldystraat, Haarlem

Binnenkijken bij
Zondag 16-11-2025
Mr. Gerlingsstraat 6RD, 2024DW Haarlem

Direct een e-mail ontvangen bij nieuwe meldingen in deze regio?

Meld je dan GRATIS aan voor de Oozo Alert service voor Burgemeesterskwartier

Instellen

Meer nieuws in Burgemeesterskwartier

Weten hoe eenvoudig het is om af te vallen? Zonder pillen en smeersels en zonder je in het zweet te werken!
Kijk op eenvoudig-afvallen.nl

© 2012 - 2025 OOZO.nl - info@oozo.nl - Gegevens verwijderen? | Disclaimer | Privacy statement