Woning Van Nouhuysstraat 7 Haarlem

Van Nouhuysstraat 7, 2024KT Haarlem

Ontvang updates voor Sinnevelt

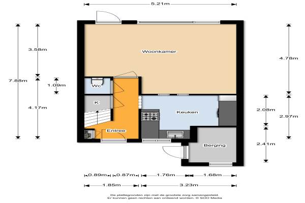
Het adres van deze woning uit 1957 is Van Nouhuysstraat 7 te Haarlem. Het pand heeft een oppervlakte van 107m² en een perceeloppervlakte van 100m² en heeft 6 kamers kamers waarvan 5 slaapkamers. De geschatte waarde van deze woning is € 365.000.

Bekijk alle woningen in Sinnevelt

Gegevens van Eengezinswoning, tussenwoning

Bouwjaar
1957
Geschatte waarde
€ 365.000
Oppervlakte
107 m2
Inhoud
375 m3
Aantal kamers
6 kamers
Slaapkamers
5
Badkamers
1 badkamer en 1 apart toilet
Soort bouw
Bestaande bouw
Eigendomssituatie
Volle eigendom
Ligging
Aan rustige weg, in woonwijk en beschutte ligging
Tuin
Achtertuin, voortuin en zonneterras
Achtertuin
35 m² (6,55m diep en 5,3m breed)

Voorzieningen in de buurt

Boodschappen0,3 km
Grote supermarkt0,3 km
Cafetaria0,9 km
Restaurant0,3 km
Huisarts0,8 km
Ziekenhuis2,2 km
Kinderdagverblijf0,3 km
BSO0,2 km
Alle voorzieningen in Sinnevelt

Binnenkijken bij Van Nouhuysstraat 7 te Haarlem

Meer meldingen in deze omgeving

112 melding
Donderdag 1-1-2026 om 23:59
Jacques Perklaan, Haarlem

112 melding
Woensdag 31-12-2025 om 20:43
Van Nouhuysstraat, Haarlem

112 melding
Dinsdag 30-12-2025 om 14:48
Delftlaan, 2024CK Haarlem

112 melding
Maandag 29-12-2025 om 12:29
Haspelsstraat, Haarlem

Nieuw bedrijf
December 2025
Plesmanlaan 16II, 2024HW Haarlem

112 melding
Dinsdag 23-12-2025 om 19:18
Karel Doormanlaan, Haarlem

Binnenkijken bij
Zaterdag 20-12-2025
Mr. Jan Gerritszlaan 25B, 2024KH Haarlem

112 melding
Vrijdag 19-12-2025 om 13:10
Delftlaan, 2024CK Haarlem

Direct een e-mail ontvangen bij nieuwe meldingen in deze regio?

Meld je dan GRATIS aan voor de Oozo Alert service voor Sinnevelt

Instellen

Meer nieuws in Sinnevelt

Weten hoe eenvoudig het is om af te vallen? Zonder pillen en smeersels en zonder je in het zweet te werken!
Kijk op eenvoudig-afvallen.nl

© 2012 - 2026 OOZO.nl - info@oozo.nl - Gegevens verwijderen? | Disclaimer | Privacy statement