Woning Johan de Meesterstraat 25 Haarlem

Johan de Meesterstraat 25, 2024KX Haarlem

Ontvang updates voor Sinnevelt

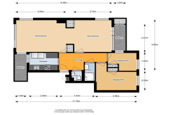
Het adres van deze woning uit 1931 is Johan de Meesterstraat 25 te Haarlem. Het pand heeft een oppervlakte van 65m² en heeft 4 kamers kamers waarvan 2 slaapkamers. De geschatte waarde van deze woning is € 196.000.

Bekijk alle woningen in Sinnevelt

Gegevens van Portiekflat (appartement)

Bouwjaar
1931
Geschatte waarde
€ 196.000
Oppervlakte
65 m2
Inhoud
210 m3
Aantal kamers
4 kamers
Slaapkamers
2
Badkamers
1 apart toilet
Soort bouw
Bestaande bouw
Eigendomssituatie
Volle eigendom
Ligging
In woonwijk

Voorzieningen in de buurt

Boodschappen0,3 km
Grote supermarkt0,3 km
Cafetaria0,9 km
Restaurant0,3 km
Huisarts0,8 km
Ziekenhuis2,2 km
Kinderdagverblijf0,3 km
BSO0,2 km
Alle voorzieningen in Sinnevelt

Binnenkijken bij Johan de Meesterstraat 25 te Haarlem

Meer meldingen in deze omgeving

Binnenkijken bij
Vrijdag 21-11-2025
Karel Doormanlaan 4, 2024HM Haarlem

Nieuw bedrijf
November 2025
Anthony Fokkerlaan 36II, 2024JE Haarlem

112 melding
Donderdag 20-11-2025 om 12:49
Willem Klooslaan, Haarlem

112 melding
Donderdag 20-11-2025 om 12:49
Willem Klooslaan, Haarlem

112 melding
Maandag 17-11-2025 om 11:41
Herman Robbersstraat, 2024HJ Haarlem

112 melding
Zondag 16-11-2025 om 16:27
Karel Doormanlaan, Haarlem

Binnenkijken bij
Zondag 16-11-2025
J.H. Leopoldstraat 11I, 2024KA Haarlem

112 melding
Zaterdag 15-11-2025 om 16:23
Mr. Jan Gerritszlaan, Haarlem

Direct een e-mail ontvangen bij nieuwe meldingen in deze regio?

Meld je dan GRATIS aan voor de Oozo Alert service voor Sinnevelt

Instellen

Meer nieuws in Sinnevelt

Weten hoe eenvoudig het is om af te vallen? Zonder pillen en smeersels en zonder je in het zweet te werken!
Kijk op eenvoudig-afvallen.nl

© 2012 - 2025 OOZO.nl - info@oozo.nl - Gegevens verwijderen? | Disclaimer | Privacy statement