Woning Leeuwendalersstraat 27 Haarlem

Leeuwendalersstraat 27, 2026AA Haarlem

Ontvang updates voor Muiderkring

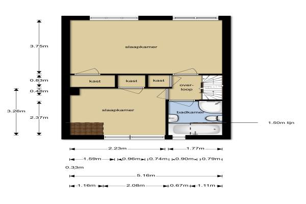
Het adres van deze woning uit 1937 is Leeuwendalersstraat 27 te Haarlem. Het pand heeft een oppervlakte van 102m² en een perceeloppervlakte van 131m² en heeft 4 kamers kamers waarvan 3 slaapkamers. De geschatte waarde van deze woning is € 400.000.

Bekijk alle woningen in Muiderkring

Gegevens van Eengezinswoning, tussenwoning

Bouwjaar
1937
Geschatte waarde
€ 400.000
Oppervlakte
102 m2
Inhoud
366 m3
Aantal kamers
4 kamers
Slaapkamers
3
Badkamers
1 badkamer en 1 apart toilet
Soort bouw
Bestaande bouw
Eigendomssituatie
Volle eigendom
Ligging
Aan rustige weg en in woonwijk
Tuin
Achtertuin en voortuin
Achtertuin
61 m² (11,25m diep en 5,4m breed)

Voorzieningen in de buurt

Boodschappen0,3 km
Grote supermarkt0,3 km
Cafetaria0,3 km
Restaurant0,3 km
Huisarts0,2 km
Ziekenhuis0,7 km
Kinderdagverblijf0,2 km
BSO0,2 km
Alle voorzieningen in Muiderkring

Binnenkijken bij Leeuwendalersstraat 27 te Haarlem

Meer meldingen in deze omgeving

112 melding
Maandag 22-12-2025 om 08:22
Constantijn Huygensstraat, Haarlem

112 melding
Vrijdag 19-12-2025 om 21:17
Leeuwendalersstraat, Haarlem

Binnenkijken bij
Vrijdag 12-12-2025
Jan Luykenstraat 56, 2026AH Haarlem

Binnenkijken bij
Woensdag 10-12-2025
Constantijn Huygensstraat 34ZW, 2026XX Haarlem

112 melding
Woensdag 3-12-2025 om 18:00
Muiderkring, 2026SZ Haarlem

Nieuw bedrijf
December 2025
Muiderslotweg 152, 2026AT Haarlem

112 melding
Zaterdag 29-11-2025 om 00:16
Leeuwendalersstraat, Haarlem

Nieuw bedrijf
November 2025
Jan Luykenstraat 69, 2026AD Haarlem

Direct een e-mail ontvangen bij nieuwe meldingen in deze regio?

Meld je dan GRATIS aan voor de Oozo Alert service voor Muiderkring

Instellen

Meer nieuws in Muiderkring

Weten hoe eenvoudig het is om af te vallen? Zonder pillen en smeersels en zonder je in het zweet te werken!
Kijk op eenvoudig-afvallen.nl

© 2012 - 2025 OOZO.nl - info@oozo.nl - Gegevens verwijderen? | Disclaimer | Privacy statement