Woning Zalkerbos 8 Hoofddorp

Zalkerbos 8, 2134EM Hoofddorp

Ontvang updates voor Hoofddorp Overbos Zuid

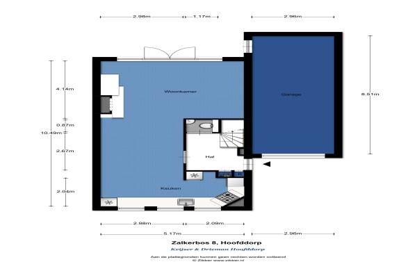
Het adres van deze woning uit 1986 is Zalkerbos 8 te Hoofddorp. Het pand heeft een oppervlakte van 136m² en een perceeloppervlakte van 213m² en heeft 5 kamers kamers waarvan 4 slaapkamers. De geschatte waarde van deze woning is € 419.000.

Bekijk alle woningen in Hoofddorp Overbos Zuid

Gegevens van Eengezinswoning, 2-onder-1-kapwoning

Bouwjaar
1986
Geschatte waarde
€ 419.000
Oppervlakte
136 m2
Inhoud
580 m3
Aantal kamers
5 kamers
Slaapkamers
4
Badkamers
1 badkamer en 1 apart toilet
Soort bouw
Bestaande bouw
Eigendomssituatie
Volle eigendom
Ligging
In woonwijk, vrij uitzicht en beschutte ligging
Tuin
Achtertuin, voortuin en zijtuin
Achtertuin
72 m² (9m diep en 8m breed)

Voorzieningen in de buurt

Boodschappen0,9 km
Grote supermarkt0,9 km
Cafetaria0,8 km
Restaurant0,8 km
Huisarts0,8 km
Ziekenhuis2,3 km
Kinderdagverblijf0,4 km
BSO0,6 km
Alle voorzieningen in Hoofddorp Overbos Zuid

Binnenkijken bij Zalkerbos 8 te Hoofddorp

Meer meldingen in deze omgeving

112 melding
Maandag 15-12-2025 om 21:56
Tolheksbos, Hoofddorp

Binnenkijken bij
Zaterdag 13-12-2025
Weerterbos 1, 2134HH Hoofddorp

112 melding
Vrijdag 12-12-2025 om 14:34
Gravenbos, Hoofddorp

112 melding
Vrijdag 12-12-2025 om 14:29
Gravenbos, Hoofddorp

112 melding
Donderdag 11-12-2025 om 03:15
Klaterbos, Hoofddorp

Nieuw bedrijf
December 2025
Veldersbos 20, 2134GM Hoofddorp

112 melding
Maandag 8-12-2025 om 18:18
Vijverbos, Hoofddorp

112 melding
Zondag 7-12-2025 om 20:20
Willemsbos, Hoofddorp

Direct een e-mail ontvangen bij nieuwe meldingen in deze regio?

Meld je dan GRATIS aan voor de Oozo Alert service voor Hoofddorp Overbos Zuid

Instellen

Meer nieuws in Hoofddorp Overbos Zuid

Weten hoe eenvoudig het is om af te vallen? Zonder pillen en smeersels en zonder je in het zweet te werken!
Kijk op eenvoudig-afvallen.nl

© 2012 - 2025 OOZO.nl - info@oozo.nl - Gegevens verwijderen? | Disclaimer | Privacy statement