Woning Lijnderdijk 195 Lijnden

Lijnderdijk 195, 1175KE Lijnden

Ontvang updates voor Lijnden

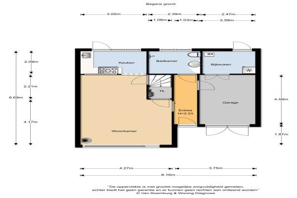
Het adres van deze woning uit 1934 is Lijnderdijk 195 te Lijnden. Het pand heeft een oppervlakte van 81m² en een perceeloppervlakte van 259m² en heeft 2 kamers kamers waarvan 1 slaapkamers. De geschatte waarde van deze woning is € 300.000.

Bekijk alle woningen in Lijnden

Gegevens van Eengezinswoning, 2-onder-1-kapwoning (dijkwoning)

Bouwjaar
1934
Geschatte waarde
€ 300.000
Oppervlakte
81 m2
Inhoud
394 m3
Aantal kamers
2 kamers
Slaapkamers
1
Badkamers
1 badkamer
Soort bouw
Bestaande bouw
Eigendomssituatie
Eigendom belast met opstal
Ligging
Aan water, aan rustige weg, vrij uitzicht, aan vaarwater en landelijk gelegen
Tuin
Achtertuin en voortuin
Achtertuin
93 m² (11,41m diep en 8,16m breed)

Voorzieningen in de buurt

Boodschappen2,4 km
Grote supermarkt2,7 km
Cafetaria2,6 km
Restaurant0,6 km
Huisarts2,5 km
Ziekenhuis6,3 km
Kinderdagverblijf2,4 km
BSO2,1 km
Alle voorzieningen in Lijnden

Binnenkijken bij Lijnderdijk 195 te Lijnden

Meer meldingen in deze omgeving

112 melding
Vrijdag 28-11-2025 om 22:29
Raasdorperweg, Lijnden

Nieuw bedrijf
November 2025
Lijnderdijk 277, 1175KJ Lijnden

Nieuw bedrijf
November 2025
Lijnderdijk 277, 1175KJ Lijnden

Wetenschappelijk nieuws
Donderdag 27-11-2025
Lijnden

Nieuw bedrijf
November 2025
Raasdorperweg 183G, 1175KV Lijnden

112 melding
Maandag 24-11-2025 om 14:14
Hoofdweg, Lijnden

Nieuw bedrijf
November 2025
Akerdijk 48, 1175LG Lijnden

112 melding
Maandag 17-11-2025 om 22:33
Lijnderdijk, Lijnden

Direct een e-mail ontvangen bij nieuwe meldingen in deze regio?

Meld je dan GRATIS aan voor de Oozo Alert service voor Lijnden

Instellen

Meer nieuws in Lijnden

Weten hoe eenvoudig het is om af te vallen? Zonder pillen en smeersels en zonder je in het zweet te werken!
Kijk op eenvoudig-afvallen.nl

© 2012 - 2025 OOZO.nl - info@oozo.nl - Gegevens verwijderen? | Disclaimer | Privacy statement