Woning Falstafflaan 25 Nieuw-Vennep

Falstafflaan 25, 2152DK Nieuw-Vennep

Ontvang updates voor Nieuw-Vennep Getsewoud Noord

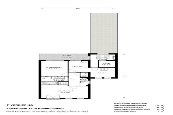
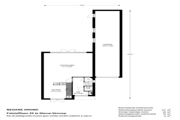
Het adres van deze woning uit 2002 is Falstafflaan 25 te Nieuw-Vennep. Het pand heeft een oppervlakte van 177m² en een perceeloppervlakte van 252m² en heeft 5 kamers kamers waarvan 4 slaapkamers. De geschatte waarde van deze woning is € 475.000.

Bekijk alle woningen in Nieuw-Vennep Getsewoud Noord

Gegevens van Herenhuis, geschakelde woning

Bouwjaar
2002
Geschatte waarde
€ 475.000
Oppervlakte
177 m2
Inhoud
780 m3
Aantal kamers
5 kamers
Slaapkamers
4
Badkamers
1 badkamer en 1 apart toilet
Soort bouw
Bestaande bouw
Eigendomssituatie
Volle eigendom
Ligging
Aan rustige weg en in woonwijk
Tuin
Achtertuin en voortuin
Achtertuin
65 m² (10,7m diep en 6,1m breed)

Voorzieningen in de buurt

Boodschappen1,6 km
Grote supermarkt1,6 km
Cafetaria1,5 km
Restaurant1,6 km
Huisarts1,4 km
Ziekenhuis1,6 km
Kinderdagverblijf0,5 km
BSO0,6 km
Alle voorzieningen in Nieuw-Vennep Getsewoud Noord

Binnenkijken bij Falstafflaan 25 te Nieuw-Vennep

Meer meldingen in deze omgeving

112 melding
Zaterdag 10-1-2026 om 01:58
Faustlaan, Nieuw-Vennep

112 melding
Woensdag 7-1-2026 om 10:04
Sarabande, Nieuw-Vennep

Binnenkijken bij
Woensdag 7-1-2026
La Bohèmeplantsoen 21, 2152GE Nieuw-Vennep

Binnenkijken bij
Dinsdag 6-1-2026
Sarabande 138, 2152TG Nieuw-Vennep

112 melding
Maandag 5-1-2026 om 16:20
Griseldalaan, Nieuw-Vennep

112 melding
Zaterdag 3-1-2026 om 18:22
La Bohèmeplantsoen, Nieuw-Vennep

112 melding
Donderdag 1-1-2026 om 07:40
Habanera, Nieuw-Vennep

Nieuw bedrijf
Januari 2026
Bolero 5, 2152SB Nieuw-Vennep

Direct een e-mail ontvangen bij nieuwe meldingen in deze regio?

Meld je dan GRATIS aan voor de Oozo Alert service voor Nieuw-Vennep Getsewoud Noord

Instellen

Meer nieuws in Nieuw-Vennep Getsewoud Noord

Weten hoe eenvoudig het is om af te vallen? Zonder pillen en smeersels en zonder je in het zweet te werken!
Kijk op eenvoudig-afvallen.nl

© 2012 - 2026 OOZO.nl - info@oozo.nl - Gegevens verwijderen? | Disclaimer | Privacy statement