Woning Rodelindalaan 44 Nieuw-Vennep

Rodelindalaan 44, 2152PK Nieuw-Vennep

Ontvang updates voor Nieuw-Vennep Getsewoud Noord

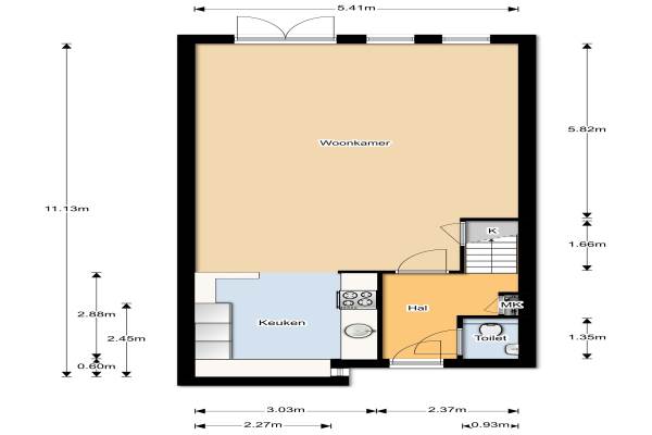
Het adres van deze woning uit 2000 is Rodelindalaan 44 te Nieuw-Vennep. Het pand heeft een oppervlakte van 135m² en een perceeloppervlakte van 124m² en heeft 5 kamers kamers waarvan 4 slaapkamers. De geschatte waarde van deze woning is € 345.000.

Bekijk alle woningen in Nieuw-Vennep Getsewoud Noord

Gegevens van Eengezinswoning, tussenwoning

Bouwjaar
2000
Geschatte waarde
€ 345.000
Oppervlakte
135 m2
Inhoud
435 m3
Aantal kamers
5 kamers
Slaapkamers
4
Badkamers
1 badkamer en 1 apart toilet
Soort bouw
Bestaande bouw
Eigendomssituatie
Volle eigendom
Ligging
Aan rustige weg en in woonwijk
Tuin
Achtertuin en voortuin
Achtertuin
25 m² (4,5m diep en 5,5m breed)

Voorzieningen in de buurt

Boodschappen1,6 km
Grote supermarkt1,6 km
Cafetaria1,5 km
Restaurant1,6 km
Huisarts1,4 km
Ziekenhuis1,6 km
Kinderdagverblijf0,5 km
BSO0,6 km
Alle voorzieningen in Nieuw-Vennep Getsewoud Noord

Binnenkijken bij Rodelindalaan 44 te Nieuw-Vennep

Meer meldingen in deze omgeving

Nieuw bedrijf
Februari 2026
Stadhouderspoort 12, 2152RW Nieuw-Vennep

Binnenkijken bij
Woensdag 18-2-2026
Mambo 43, 2152SW Nieuw-Vennep

112 melding
Maandag 16-2-2026 om 13:10
Laan van Norma, Nieuw-Vennep

112 melding
Zondag 15-2-2026 om 08:16
Laan van Norma, Nieuw-Vennep

112 melding
Zaterdag 14-2-2026 om 13:43
Foxtrot, 2152SR Nieuw-Vennep

112 melding
Zaterdag 14-2-2026 om 13:43
Foxtrot, 2152SR Nieuw-Vennep

112 melding
Zaterdag 14-2-2026 om 13:31
Foxtrot, 2152SR Nieuw-Vennep

112 melding
Zaterdag 14-2-2026 om 02:02
Nabuccosingel, Nieuw-Vennep

Direct een e-mail ontvangen bij nieuwe meldingen in deze regio?

Meld je dan GRATIS aan voor de Oozo Alert service voor Nieuw-Vennep Getsewoud Noord

Instellen

Meer nieuws in Nieuw-Vennep Getsewoud Noord

Weten hoe eenvoudig het is om af te vallen? Zonder pillen en smeersels en zonder je in het zweet te werken!
Kijk op eenvoudig-afvallen.nl

© 2012 - 2026 OOZO.nl - info@oozo.nl - Gegevens verwijderen? | Disclaimer | Privacy statement