Woning Wayesteinsingel 111 Nieuw-Vennep

Wayesteinsingel 111, 2151KT Nieuw-Vennep

Ontvang updates voor Nieuw-Vennep Getsewoud Zuid

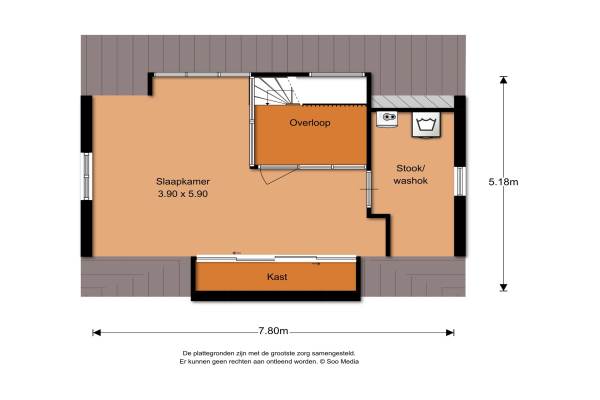
Het adres van deze woning uit 2001 is Wayesteinsingel 111 te Nieuw-Vennep. Het pand heeft een oppervlakte van 127m² en een perceeloppervlakte van 189m² en heeft 4 kamers kamers waarvan 3 slaapkamers. De geschatte waarde van deze woning is € 389.000.

Bekijk alle woningen in Nieuw-Vennep Getsewoud Zuid

Gegevens van Herenhuis, hoekwoning

Bouwjaar
2001
Geschatte waarde
€ 389.000
Oppervlakte
127 m2
Inhoud
381 m3
Aantal kamers
4 kamers
Slaapkamers
3
Badkamers
1 badkamer en 1 apart toilet
Soort bouw
Bestaande bouw
Eigendomssituatie
Volle eigendom
Ligging
In woonwijk en vrij uitzicht
Tuin
Achtertuin, voortuin en zijtuin
Achtertuin
75 m² (10m diep en 7,5m breed)

Voorzieningen in de buurt

Boodschappen1,5 km
Grote supermarkt1,5 km
Cafetaria1,5 km
Restaurant1,5 km
Huisarts1,5 km
Ziekenhuis2,3 km
Kinderdagverblijf0,5 km
BSO0,9 km
Alle voorzieningen in Nieuw-Vennep Getsewoud Zuid

Binnenkijken bij Wayesteinsingel 111 te Nieuw-Vennep

Meer meldingen in deze omgeving

112 melding
Zaterdag 18-10-2025 om 03:55
Palmestein, Nieuw-Vennep

112 melding
Vrijdag 17-10-2025 om 15:58
Remmersteinpark, Nieuw-Vennep

112 melding
Vrijdag 17-10-2025 om 08:50
Remmersteinpark, Nieuw-Vennep

Binnenkijken bij
Vrijdag 17-10-2025
Flierveld 38, 2151LG Nieuw-Vennep

Binnenkijken bij
Donderdag 16-10-2025
Frederiksveld 27, 2151LP Nieuw-Vennep

Nieuw bedrijf
Oktober 2025
Laan van Loevestein 52, 2151EB Nieuw-Vennep

Nieuw bedrijf
Oktober 2025
Laan van Loevestein 43, 2151EC Nieuw-Vennep

Nieuw bedrijf
Oktober 2025
Bachlaan 45, 2151GD Nieuw-Vennep

Direct een e-mail ontvangen bij nieuwe meldingen in deze regio?

Meld je dan GRATIS aan voor de Oozo Alert service voor Nieuw-Vennep Getsewoud Zuid

Instellen

Meer nieuws in Nieuw-Vennep Getsewoud Zuid

Weten hoe eenvoudig het is om af te vallen? Zonder pillen en smeersels en zonder je in het zweet te werken!
Kijk op eenvoudig-afvallen.nl

© 2012 - 2025 OOZO.nl - info@oozo.nl - Gegevens verwijderen? | Disclaimer | Privacy statement