Woning Rhienderstein 56 Nieuw-Vennep

Rhienderstein 56, 2151HK Nieuw-Vennep

Ontvang updates voor Nieuw-Vennep Getsewoud Zuid

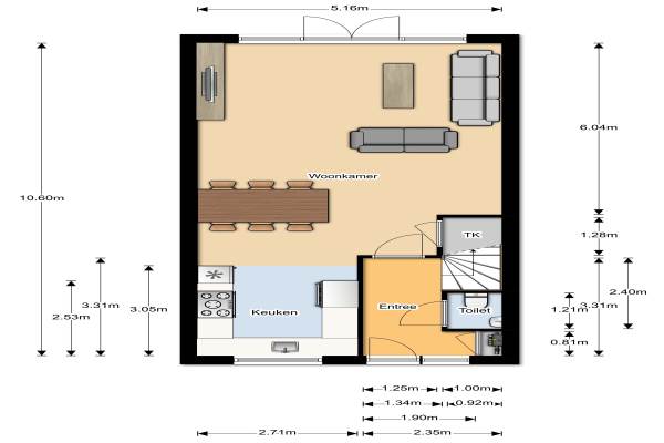
Het adres van deze woning uit 1999 is Rhienderstein 56 te Nieuw-Vennep. Het pand heeft een oppervlakte van 125m² en een perceeloppervlakte van 141m² en heeft 6 kamers kamers waarvan 5 slaapkamers. De geschatte waarde van deze woning is € 289.000.

Bekijk alle woningen in Nieuw-Vennep Getsewoud Zuid

Gegevens van Eengezinswoning, tussenwoning

Bouwjaar
1999
Geschatte waarde
€ 289.000
Oppervlakte
125 m2
Inhoud
377 m3
Aantal kamers
6 kamers
Slaapkamers
5
Badkamers
1 badkamer en 1 apart toilet
Soort bouw
Bestaande bouw
Eigendomssituatie
Volle eigendom
Ligging
In woonwijk
Tuin
Achtertuin en voortuin
Achtertuin
55 m² (10m diep en 5,5m breed)

Voorzieningen in de buurt

Boodschappen1,5 km
Grote supermarkt1,5 km
Cafetaria1,5 km
Restaurant1,5 km
Huisarts1,5 km
Ziekenhuis2,3 km
Kinderdagverblijf0,5 km
BSO0,9 km
Alle voorzieningen in Nieuw-Vennep Getsewoud Zuid

Binnenkijken bij Rhienderstein 56 te Nieuw-Vennep

Meer meldingen in deze omgeving

Nieuw bedrijf
December 2025
Mozartlaan 38, 2151GJ Nieuw-Vennep

Nieuw bedrijf
December 2025
Wayesteinsingel 103, 2151KS Nieuw-Vennep

112 melding
Dinsdag 9-12-2025 om 10:49
Remmersteinpark, Nieuw-Vennep

112 melding
Maandag 8-12-2025 om 21:43
Beethovenlaan, 2151GT Nieuw-Vennep

112 melding
Maandag 8-12-2025 om 10:53
Laan van Gildestein, Nieuw-Vennep

112 melding
Maandag 8-12-2025 om 10:10
Remmersteinpark, Nieuw-Vennep

112 melding
Zaterdag 6-12-2025 om 11:36
Händelplein, Nieuw-Vennep

112 melding
Donderdag 4-12-2025 om 22:23
Remmersteinpark, Nieuw-Vennep

Direct een e-mail ontvangen bij nieuwe meldingen in deze regio?

Meld je dan GRATIS aan voor de Oozo Alert service voor Nieuw-Vennep Getsewoud Zuid

Instellen

Meer nieuws in Nieuw-Vennep Getsewoud Zuid

Weten hoe eenvoudig het is om af te vallen? Zonder pillen en smeersels en zonder je in het zweet te werken!
Kijk op eenvoudig-afvallen.nl

© 2012 - 2025 OOZO.nl - info@oozo.nl - Gegevens verwijderen? | Disclaimer | Privacy statement