Woning Oddinkhem 1 Nieuw-Vennep

Oddinkhem 1, 2151SP Nieuw-Vennep

Ontvang updates voor Nieuw-Vennep Linquenda

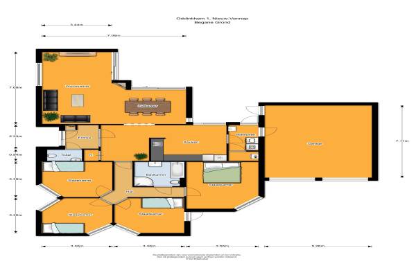
Het adres van deze woning uit 1975 is Oddinkhem 1 te Nieuw-Vennep. Het pand heeft een oppervlakte van 129m² en een perceeloppervlakte van 463m² en heeft 5 kamers kamers waarvan 4 slaapkamers. De geschatte waarde van deze woning is € 450.000.

Bekijk alle woningen in Nieuw-Vennep Linquenda

Gegevens van Bungalow, halfvrijstaande woning

Bouwjaar
1975
Geschatte waarde
€ 450.000
Oppervlakte
129 m2
Inhoud
563 m3
Aantal kamers
5 kamers
Slaapkamers
4
Badkamers
1 badkamer en 1 apart toilet
Soort bouw
Bestaande bouw
Eigendomssituatie
Volle eigendom
Ligging
Aan rustige weg, in woonwijk en beschutte ligging
Tuin
Achtertuin, voortuin en zijtuin
Achtertuin
160 m² (10m diep en 23m breed)

Voorzieningen in de buurt

Boodschappen0,5 km
Grote supermarkt0,5 km
Cafetaria1,3 km
Restaurant1,2 km
Huisarts1,2 km
Ziekenhuis1,8 km
Kinderdagverblijf0,5 km
BSO0,5 km
Alle voorzieningen in Nieuw-Vennep Linquenda

Binnenkijken bij Oddinkhem 1 te Nieuw-Vennep

Meer meldingen in deze omgeving

112 melding
Zaterdag 8-11-2025 om 08:54
Zaanden, Nieuw-Vennep

112 melding
Zaterdag 8-11-2025 om 08:53
Zaanden, Nieuw-Vennep

112 melding
Zaterdag 8-11-2025 om 08:52
Zaanden, Nieuw-Vennep

112 melding
Zaterdag 8-11-2025 om 08:52
Zaanden, Nieuw-Vennep

112 melding
Zaterdag 8-11-2025 om 08:48
Zaanden, Nieuw-Vennep

Binnenkijken bij
Woensdag 29-10-2025
Kalslagerring 155, 2151TC Nieuw-Vennep

Binnenkijken bij
Woensdag 29-10-2025
Vronen 4, 2151PC Nieuw-Vennep

Binnenkijken bij
Woensdag 29-10-2025
Langemoor 14, 2151VE Nieuw-Vennep

Direct een e-mail ontvangen bij nieuwe meldingen in deze regio?

Meld je dan GRATIS aan voor de Oozo Alert service voor Nieuw-Vennep Linquenda

Instellen

Meer nieuws in Nieuw-Vennep Linquenda

Weten hoe eenvoudig het is om af te vallen? Zonder pillen en smeersels en zonder je in het zweet te werken!
Kijk op eenvoudig-afvallen.nl

© 2012 - 2025 OOZO.nl - info@oozo.nl - Gegevens verwijderen? | Disclaimer | Privacy statement