Woning Blechtekum 4 Nieuw-Vennep

Blechtekum 4, 2151SJ Nieuw-Vennep

Ontvang updates voor Nieuw-Vennep Linquenda

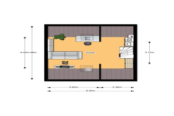
Het adres van deze woning uit 1972 is Blechtekum 4 te Nieuw-Vennep. Het pand heeft een oppervlakte van 121m² en een perceeloppervlakte van 185m² en heeft 4 kamers kamers waarvan 3 slaapkamers. De geschatte waarde van deze woning is € 295.000.

Bekijk alle woningen in Nieuw-Vennep Linquenda

Gegevens van Eengezinswoning, eindwoning

Bouwjaar
1972
Geschatte waarde
€ 295.000
Oppervlakte
121 m2
Inhoud
432 m3
Aantal kamers
4 kamers
Slaapkamers
3
Badkamers
1 apart toilet
Soort bouw
Bestaande bouw
Eigendomssituatie
Volle eigendom
Ligging
Aan park, aan rustige weg en in woonwijk
Tuin
Achtertuin en voortuin
Achtertuin
63 m² (9,9m diep en 6,4m breed)

Voorzieningen in de buurt

Boodschappen0,5 km
Grote supermarkt0,5 km
Cafetaria1,3 km
Restaurant1,2 km
Huisarts1,2 km
Ziekenhuis1,8 km
Kinderdagverblijf0,5 km
BSO0,5 km
Alle voorzieningen in Nieuw-Vennep Linquenda

Binnenkijken bij Blechtekum 4 te Nieuw-Vennep

Meer meldingen in deze omgeving

112 melding
Zaterdag 8-11-2025 om 08:54
Zaanden, Nieuw-Vennep

112 melding
Zaterdag 8-11-2025 om 08:53
Zaanden, Nieuw-Vennep

112 melding
Zaterdag 8-11-2025 om 08:52
Zaanden, Nieuw-Vennep

112 melding
Zaterdag 8-11-2025 om 08:52
Zaanden, Nieuw-Vennep

112 melding
Zaterdag 8-11-2025 om 08:48
Zaanden, Nieuw-Vennep

Binnenkijken bij
Woensdag 29-10-2025
Kalslagerring 155, 2151TC Nieuw-Vennep

Binnenkijken bij
Woensdag 29-10-2025
Vronen 4, 2151PC Nieuw-Vennep

Binnenkijken bij
Woensdag 29-10-2025
Langemoor 14, 2151VE Nieuw-Vennep

Direct een e-mail ontvangen bij nieuwe meldingen in deze regio?

Meld je dan GRATIS aan voor de Oozo Alert service voor Nieuw-Vennep Linquenda

Instellen

Meer nieuws in Nieuw-Vennep Linquenda

Weten hoe eenvoudig het is om af te vallen? Zonder pillen en smeersels en zonder je in het zweet te werken!
Kijk op eenvoudig-afvallen.nl

© 2012 - 2025 OOZO.nl - info@oozo.nl - Gegevens verwijderen? | Disclaimer | Privacy statement