Woning Hoofdweg 1378 53 LV Nieuw-Vennep

Hoofdweg 1378, 2153LV 53 LV Nieuw-Vennep

Ontvang updates voor Nieuw-Vennep Zuid

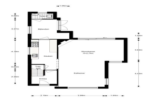
Het adres van deze woning uit 1918 is Hoofdweg 1378 te 53 LV Nieuw-Vennep. Het pand heeft een oppervlakte van 108m² en een perceeloppervlakte van 552m² en heeft 4 kamers kamers waarvan 3 slaapkamers. De geschatte waarde van deze woning is € 385.000.

Bekijk alle woningen in Nieuw-Vennep Zuid

Gegevens van Eengezinswoning, vrijstaande woning

Bouwjaar
1918
Geschatte waarde
€ 385.000
Oppervlakte
108 m2
Inhoud
360 m3
Aantal kamers
4 kamers
Slaapkamers
3
Soort bouw
Bestaande bouw
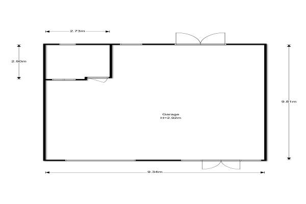
Tuin
Achtertuin en zonneterras
Achtertuin
117 m² (10,9m diep en 10,7m breed)

Voorzieningen in de buurt

Boodschappen0,6 km
Grote supermarkt0,7 km
Cafetaria0,6 km
Restaurant0,5 km
Huisarts0,7 km
Ziekenhuis1,9 km
Kinderdagverblijf0,7 km
BSO0,8 km
Alle voorzieningen in Nieuw-Vennep Zuid

Binnenkijken bij Hoofdweg 1378 te 53 LV Nieuw-Vennep

Meer meldingen in deze omgeving

112 melding
Zondag 12-10-2025 om 15:46
Spaanse Ruiterpad, 2153ER Nieuw-Vennep

112 melding
Zondag 12-10-2025 om 15:46
Spaanse Ruiterpad, 2153ER Nieuw-Vennep

Onroerend goed
Vrijdag 10-10-2025
St. Anthoniusstraat 1, 2153BA Nieuw-Vennep

Binnenkijken bij
Donderdag 9-10-2025
Weegbreestraat 96, 2153EE Nieuw-Vennep

Nieuw bedrijf
Oktober 2025
Oosterdreef 170, 2153CA Nieuw-Vennep

112 melding
Zaterdag 27-9-2025 om 11:15
Kerkstraat, Nieuw-Vennep

Binnenkijken bij
Vrijdag 26-9-2025
Kerkstraat 9, 2153BD Nieuw-Vennep

112 melding
Donderdag 25-9-2025 om 12:29
Kerkstraat, Nieuw-Vennep

Direct een e-mail ontvangen bij nieuwe meldingen in deze regio?

Meld je dan GRATIS aan voor de Oozo Alert service voor Nieuw-Vennep Zuid

Instellen

Meer nieuws in Nieuw-Vennep Zuid

Weten hoe eenvoudig het is om af te vallen? Zonder pillen en smeersels en zonder je in het zweet te werken!
Kijk op eenvoudig-afvallen.nl

© 2012 - 2025 OOZO.nl - info@oozo.nl - Gegevens verwijderen? | Disclaimer | Privacy statement