Woning Ambachtenstraat 19 Oudenbosch

Ambachtenstraat 19, 4731RE Oudenbosch

Ontvang updates voor Spui

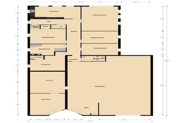
Het adres van deze woning uit 1995 is Ambachtenstraat 19 te Oudenbosch. Het pand heeft een oppervlakte van 207m² en een perceeloppervlakte van 1206m² en heeft 8 kamers kamers waarvan 3 slaapkamers. De geschatte waarde van deze woning is € 525.000.

Bekijk alle woningen in Spui

Gegevens van Bungalow, vrijstaande woning

Bouwjaar
1995
Geschatte waarde
€ 525.000
Oppervlakte
207 m2
Inhoud
778 m3
Aantal kamers
8 kamers
Slaapkamers
3
Badkamers
1 badkamer en 1 apart toilet
Soort bouw
Bestaande bouw
Eigendomssituatie
Volle eigendom
Ligging
Aan rustige weg
Tuin
Achtertuin, voortuin en zijtuin
Achtertuin
304 m² (16m diep en 19m breed)

Voorzieningen in de buurt

Boodschappen0,6 km
Grote supermarkt0,6 km
Cafetaria0,5 km
Restaurant0,6 km
Huisarts0,7 km
Ziekenhuis0,7 km
Kinderdagverblijf0,9 km
BSO0,9 km
Alle voorzieningen in Spui

Binnenkijken bij Ambachtenstraat 19 te Oudenbosch

Meer meldingen in deze omgeving

Binnenkijken bij
Vrijdag 9-1-2026
Boterpotten 4, 4731NX Oudenbosch

Binnenkijken bij
Vrijdag 9-1-2026
Duiventoren 92, 4731MX Oudenbosch

Binnenkijken bij
Dinsdag 6-1-2026
Spuilaan 386, 4731NR Oudenbosch

Nieuw bedrijf
Januari 2026
Wielerbaan 21, 4731NV Oudenbosch

Nieuw bedrijf
December 2025
Duiventoren 68, 4731MX Oudenbosch

Nieuw bedrijf
December 2025
Havenhoofd 2, 4731MN Oudenbosch

Binnenkijken bij
Vrijdag 21-11-2025
Spuilaan 2, 4731NH Oudenbosch

Nieuw bedrijf
November 2025
Jaap Edenlaan 15, 4731NW Oudenbosch

Direct een e-mail ontvangen bij nieuwe meldingen in deze regio?

Meld je dan GRATIS aan voor de Oozo Alert service voor Spui

Instellen

Meer nieuws in Spui

Weten hoe eenvoudig het is om af te vallen? Zonder pillen en smeersels en zonder je in het zweet te werken!
Kijk op eenvoudig-afvallen.nl

© 2012 - 2026 OOZO.nl - info@oozo.nl - Gegevens verwijderen? | Disclaimer | Privacy statement