Woning Parallelweg 61 De Krim

Parallelweg 61, 7782PH De Krim

Ontvang updates voor De Krim-Streekdorp

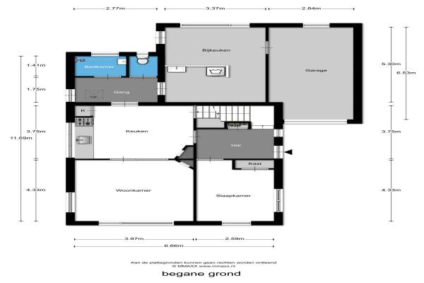
Het adres van deze woning uit 1963 is Parallelweg 61 te De Krim. Het pand heeft een oppervlakte van 119m² en een perceeloppervlakte van 845m² en heeft 5 kamers kamers waarvan 4 slaapkamers. De geschatte waarde van deze woning is € 189.000.

Bekijk alle woningen in De Krim-Streekdorp

Gegevens van Eengezinswoning, vrijstaande woning

Bouwjaar
1963
Geschatte waarde
€ 189.000
Oppervlakte
119 m2
Inhoud
526 m3
Aantal kamers
5 kamers
Slaapkamers
4
Badkamers
1 apart toilet
Soort bouw
Bestaande bouw
Eigendomssituatie
Volle eigendom
Ligging
Aan water, aan rustige weg en vrij uitzicht
Tuin
Achtertuin, voortuin en zijtuin

Voorzieningen in de buurt

Boodschappen1,0 km
Grote supermarkt1,0 km
Cafetaria0,9 km
Restaurant0,9 km
Huisarts0,9 km
Ziekenhuis12,0 km
Kinderdagverblijf1,1 km
BSO1,1 km
Alle voorzieningen in De Krim-Streekdorp

Binnenkijken bij Parallelweg 61 te De Krim

Meer meldingen in deze omgeving

Binnenkijken bij
Zaterdag 14-2-2026
Hoofdweg 113, 7782PS De Krim

Binnenkijken bij
Woensdag 21-1-2026
Parallelweg 96, 7782PJ De Krim

Binnenkijken bij
Dinsdag 13-1-2026
Parallelweg 40, 7782PE De Krim

Nieuw bedrijf
Januari 2026
Parallelweg 66, 7782PH De Krim

Nieuw bedrijf
Januari 2026
Parallelweg 66, 7782PH De Krim

Nieuw bedrijf
Januari 2026
Parallelweg 66, 7782PH De Krim

112 melding
Dinsdag 16-12-2025 om 07:20
Hoofdweg, 7782PN De Krim

112 melding
Dinsdag 16-12-2025 om 07:20
Hoofdweg, 7782PN De Krim

Direct een e-mail ontvangen bij nieuwe meldingen in deze regio?

Meld je dan GRATIS aan voor de Oozo Alert service voor De Krim-Streekdorp

Instellen

Meer nieuws in De Krim-Streekdorp

Weten hoe eenvoudig het is om af te vallen? Zonder pillen en smeersels en zonder je in het zweet te werken!
Kijk op eenvoudig-afvallen.nl

© 2012 - 2026 OOZO.nl - info@oozo.nl - Gegevens verwijderen? | Disclaimer | Privacy statement