Woning Salentijnerhout 16 Harderwijk

Salentijnerhout 16, 3845EV Harderwijk

Ontvang updates voor Harderhout I

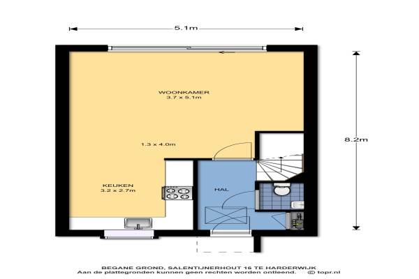
Het adres van deze woning uit 2004 is Salentijnerhout 16 te Harderwijk. Het pand heeft een oppervlakte van 110m² en een perceeloppervlakte van 154m² en heeft 5 kamers kamers waarvan 3 slaapkamers. De geschatte waarde van deze woning is € 239.000.

Bekijk alle woningen in Harderhout I

Gegevens van Eengezinswoning, tussenwoning

Bouwjaar
2004
Geschatte waarde
€ 239.000
Oppervlakte
110 m2
Inhoud
380 m3
Aantal kamers
5 kamers
Slaapkamers
3
Badkamers
1 badkamer en 1 apart toilet
Soort bouw
Bestaande bouw
Eigendomssituatie
Volle eigendom
Ligging
In woonwijk
Tuin
Achtertuin en voortuin
Achtertuin
72 m² (12,5m diep en 5,75m breed)

Voorzieningen in de buurt

Boodschappen0,6 km
Grote supermarkt0,6 km
Cafetaria0,6 km
Restaurant0,6 km
Huisarts0,5 km
Ziekenhuis3,5 km
Kinderdagverblijf0,3 km
BSO0,3 km
Alle voorzieningen in Harderhout I

Binnenkijken bij Salentijnerhout 16 te Harderwijk

Meer meldingen in deze omgeving

Binnenkijken bij
Zondag 25-1-2026
Oldenallerhout 138, 3845EC Harderwijk

Binnenkijken bij
Woensdag 21-1-2026
Schaffelaarhout 30, 3845EG Harderwijk

Binnenkijken bij
Vrijdag 9-1-2026
Oldenallerhout 74, 3845EC Harderwijk

Nieuw bedrijf
Januari 2026
Vosbergerhout 91, 3845EP Harderwijk

112 melding
Woensdag 31-12-2025 om 22:00
Oldenallerhout, Harderwijk

112 melding
Woensdag 31-12-2025 om 21:59
Oldenallerhout, Harderwijk

Binnenkijken bij
Zaterdag 20-12-2025
Vosbergerhout 79, 3845EP Harderwijk

112 melding
Zaterdag 6-12-2025 om 20:08
Vosbergerhout, Harderwijk

Direct een e-mail ontvangen bij nieuwe meldingen in deze regio?

Meld je dan GRATIS aan voor de Oozo Alert service voor Harderhout I

Instellen

Meer nieuws in Harderhout I

Weten hoe eenvoudig het is om af te vallen? Zonder pillen en smeersels en zonder je in het zweet te werken!
Kijk op eenvoudig-afvallen.nl

© 2012 - 2026 OOZO.nl - info@oozo.nl - Gegevens verwijderen? | Disclaimer | Privacy statement