Woning Van Heemskercklaan 53 Harderwijk

Van Heemskercklaan 53, 3843XP Harderwijk

Ontvang updates voor De Wittenhagen-Noord

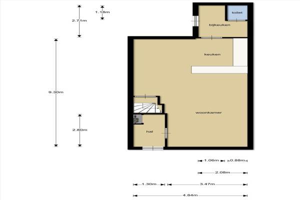
Het adres van deze woning uit 1974 is Van Heemskercklaan 53 te Harderwijk. Het pand heeft een oppervlakte van 132m² en een perceeloppervlakte van 140m² en heeft 5 kamers kamers waarvan 4 slaapkamers. De geschatte waarde van deze woning is € 237.500.

Bekijk alle woningen in De Wittenhagen-Noord

Gegevens van Eengezinswoning, tussenwoning

Bouwjaar
1974
Geschatte waarde
€ 237.500
Oppervlakte
132 m2
Inhoud
370 m3
Aantal kamers
5 kamers
Slaapkamers
4
Soort bouw
Bestaande bouw
Eigendomssituatie
Volle eigendom
Ligging
Aan rustige weg
Tuin
Achtertuin en voortuin
Achtertuin
50 m² (10m diep en 5m breed)

Voorzieningen in de buurt

Boodschappen0,3 km
Grote supermarkt0,3 km
Cafetaria0,3 km
Restaurant0,7 km
Huisarts0,9 km
Ziekenhuis2,7 km
Kinderdagverblijf0,5 km
BSO1,4 km
Alle voorzieningen in De Wittenhagen-Noord

Binnenkijken bij Van Heemskercklaan 53 te Harderwijk

Meer meldingen in deze omgeving

Nieuw bedrijf
December 2025
De Wittenhagen 75, 3843GG Harderwijk

Binnenkijken bij
Zaterdag 6-12-2025
Karel Doormanlaan 12, 3843EA Harderwijk

Nieuw bedrijf
December 2025
Piet Heinlaan 6, 3843EZ Harderwijk

112 melding
Maandag 17-11-2025 om 09:49
Van Speyklaan, Harderwijk

112 melding
Maandag 17-11-2025 om 09:49
Van Speyklaan, Harderwijk

Binnenkijken bij
Vrijdag 14-11-2025
Van Speyklaan 314, 3843GX Harderwijk

Binnenkijken bij
Vrijdag 14-11-2025
Deventerweg 35, 3843GA Harderwijk

Binnenkijken bij
Dinsdag 11-11-2025
Van Speyklaan 7, 3843GL Harderwijk

Direct een e-mail ontvangen bij nieuwe meldingen in deze regio?

Meld je dan GRATIS aan voor de Oozo Alert service voor De Wittenhagen-Noord

Instellen

Meer nieuws in De Wittenhagen-Noord

Weten hoe eenvoudig het is om af te vallen? Zonder pillen en smeersels en zonder je in het zweet te werken!
Kijk op eenvoudig-afvallen.nl

© 2012 - 2025 OOZO.nl - info@oozo.nl - Gegevens verwijderen? | Disclaimer | Privacy statement