Woning Grootslaan 7 Haren (GR)

Grootslaan 7, 9751WG Haren (GR)

Ontvang updates voor Hemmen

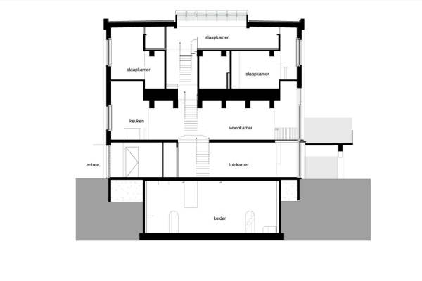
Het adres van deze woning uit 2024 is Grootslaan 7 te Haren (GR). Het pand heeft een oppervlakte van 264m² en een perceeloppervlakte van 394m² en heeft 6 kamers kamers waarvan 4 slaapkamers. De geschatte waarde van deze woning is € 825.000.

Bekijk alle woningen in Hemmen

Gegevens van Herenhuis, tussenwoning

Bouwjaar
2024
Geschatte waarde
€ 825.000
Oppervlakte
264 m2
Inhoud
1400 m3
Aantal kamers
6 kamers
Slaapkamers
4
Badkamers
2 badkamers en 1 apart toilet
Soort bouw
Bestaande bouw
Eigendomssituatie
Eigendom belast met opstal
Ligging
Aan rustige weg, beschutte ligging en in woonwijk
Tuin
Achtertuin en voortuin
Achtertuin
120 m² (15 meter diep en 8 meter breed)

Voorzieningen in de buurt

Binnenkijken bij Grootslaan 7 te Haren (GR)

Meer meldingen in deze omgeving

Nieuw bedrijf
Februari 2026
Rijksstraatweg 2827, 9752AE Haren Gn

Binnenkijken bij
Woensdag 18-2-2026
Honderdspint 14, 9751WN Haren (GR)

Nieuw bedrijf
Januari 2026
Dilgtweg 2, 9751NG Haren Gn

Binnenkijken bij
Vrijdag 16-1-2026
Avemoerscampe 26, 9751MB Haren (GR)

112 melding
Maandag 12-1-2026 om 03:27
Dilgtweg, Haren

112 melding
Maandag 12-1-2026 om 03:25
Dilgtweg, Haren

112 melding
Zondag 11-1-2026 om 15:03
Tegenhoeskamp, 9751WP Haren

112 melding
Zondag 11-1-2026 om 13:29
Tegenhoeskamp, 9751WP Haren

Direct een e-mail ontvangen bij nieuwe meldingen in deze regio?

Meld je dan GRATIS aan voor de Oozo Alert service voor Hemmen

Instellen

Meer nieuws in Hemmen

Weten hoe eenvoudig het is om af te vallen? Zonder pillen en smeersels en zonder je in het zweet te werken!
Kijk op eenvoudig-afvallen.nl

© 2012 - 2026 OOZO.nl - info@oozo.nl - Gegevens verwijderen? | Disclaimer | Privacy statement