Woning Sanderspad 11 Hattem

Sanderspad 11, 8051SW Hattem

Ontvang updates voor Hogenkamp en omgeving

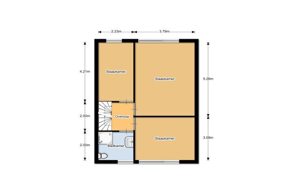
Het adres van deze woning uit 1984 is Sanderspad 11 te Hattem. Het pand heeft een oppervlakte van 127m² en een perceeloppervlakte van 235m² en heeft 5 kamers kamers waarvan 4 slaapkamers. De geschatte waarde van deze woning is € 365.000.

Bekijk alle woningen in Hogenkamp en omgeving

Gegevens van Eengezinswoning, geschakelde 2-onder-1-kapwoning

Bouwjaar
1984
Geschatte waarde
€ 365.000
Oppervlakte
127 m2
Inhoud
400 m3
Aantal kamers
5 kamers
Slaapkamers
4
Badkamers
1 badkamer en 1 apart toilet
Soort bouw
Bestaande bouw
Eigendomssituatie
Volle eigendom
Ligging
Aan rustige weg en in woonwijk
Tuin
Achtertuin en voortuin
Achtertuin
95 m² (10,5m diep en 9m breed)

Voorzieningen in de buurt

Boodschappen0,9 km
Grote supermarkt0,9 km
Cafetaria0,6 km
Restaurant1,0 km
Huisarts1,1 km
Ziekenhuis7,3 km
Kinderdagverblijf0,7 km
BSO0,6 km
Alle voorzieningen in Hogenkamp en omgeving

Binnenkijken bij Sanderspad 11 te Hattem

Meer meldingen in deze omgeving

Nieuw bedrijf
November 2025
Gerstekamp 11, 8051ZP Hattem

Binnenkijken bij
Woensdag 29-10-2025
Stadslaan 60, 8051NE Hattem

112 melding
Maandag 13-10-2025 om 02:45
Boskamp, 8051MK Hattem

Binnenkijken bij
Donderdag 9-10-2025
Boskamp 24, 8051MK Hattem

Binnenkijken bij
Donderdag 9-10-2025
Sanderspad 12, 8051SW Hattem

Binnenkijken bij
Zaterdag 27-9-2025
Eijerdijk 75, 8051MS Hattem

Binnenkijken bij
Maandag 22-9-2025
Stadslaan 78, 8051NE Hattem

Binnenkijken bij
Vrijdag 19-9-2025
Eijerdijk 48, 8051MV Hattem

Direct een e-mail ontvangen bij nieuwe meldingen in deze regio?

Meld je dan GRATIS aan voor de Oozo Alert service voor Hogenkamp en omgeving

Instellen

Meer nieuws in Hogenkamp en omgeving

Weten hoe eenvoudig het is om af te vallen? Zonder pillen en smeersels en zonder je in het zweet te werken!
Kijk op eenvoudig-afvallen.nl

© 2012 - 2025 OOZO.nl - info@oozo.nl - Gegevens verwijderen? | Disclaimer | Privacy statement