Woning Laan van Broekpolder 423 HEEMSKERK

Laan van Broekpolder 423, 1967KJ HEEMSKERK

Ontvang updates voor De Citadel

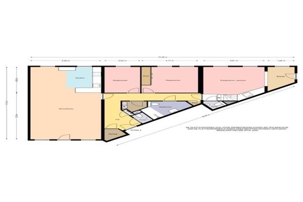
Het adres van deze woning uit 2004 is Laan van Broekpolder 423 te HEEMSKERK. Het pand heeft een oppervlakte van 151m² en heeft 4 kamers kamers waarvan 3 slaapkamers. De geschatte waarde van deze woning is € 575.000.

Bekijk alle woningen in De Citadel

Gegevens van Benedenwoning

Bouwjaar
2004
Geschatte waarde
€ 575.000
Oppervlakte
151 m2
Aantal kamers
4 kamers
Slaapkamers
3
Tuin
Tuin

Voorzieningen in de buurt

Boodschappen0,5 km
Grote supermarkt0,5 km
Cafetaria0,5 km
Restaurant0,5 km
Huisarts0,6 km
Ziekenhuis3,8 km
Kinderdagverblijf0,9 km
BSO0,5 km
Alle voorzieningen in De Citadel

Binnenkijken bij Laan van Broekpolder 423 te HEEMSKERK

Meer meldingen in deze omgeving

112 melding
Vrijdag 7-11-2025 om 18:14
Avenweide, 1967HE Heemskerk

112 melding
Vrijdag 7-11-2025 om 17:15
Stroomwal, 1967JK Heemskerk

112 melding
Donderdag 6-11-2025 om 22:59
Vuursteen, 1967CZ Heemskerk

112 melding
Donderdag 6-11-2025 om 11:03
Hevel, 1967JC Heemskerk

112 melding
Donderdag 6-11-2025 om 10:00
Steenhouwerskwartier, 1967KE Heemskerk

112 melding
Donderdag 6-11-2025 om 10:00
Steenhouwerskwartier, 1967KE Heemskerk

112 melding
Donderdag 6-11-2025 om 09:46
Schutterskwartier, 1967KA Heemskerk

112 melding
Donderdag 6-11-2025 om 08:50
Stroomwal, 1967JK Heemskerk

Direct een e-mail ontvangen bij nieuwe meldingen in deze regio?

Meld je dan GRATIS aan voor de Oozo Alert service voor De Citadel

Instellen

Meer nieuws in De Citadel

Weten hoe eenvoudig het is om af te vallen? Zonder pillen en smeersels en zonder je in het zweet te werken!
Kijk op eenvoudig-afvallen.nl

© 2012 - 2025 OOZO.nl - info@oozo.nl - Gegevens verwijderen? | Disclaimer | Privacy statement