Woning Boompjesven 3 Heemskerk

Boompjesven 3, 1963SJ Heemskerk

Ontvang updates voor De Die

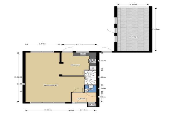
Het adres van deze woning uit 1972 is Boompjesven 3 te Heemskerk. Het pand heeft een oppervlakte van 129m² en een perceeloppervlakte van 207m² en heeft 6 kamers kamers waarvan 4 slaapkamers. De geschatte waarde van deze woning is € 339.500.

Bekijk alle woningen in De Die

Gegevens van Eengezinswoning, 2-onder-1-kapwoning

Bouwjaar
1972
Geschatte waarde
€ 339.500
Oppervlakte
129 m2
Inhoud
450 m3
Aantal kamers
6 kamers
Slaapkamers
4
Badkamers
1 badkamer en 1 apart toilet
Soort bouw
Bestaande bouw
Eigendomssituatie
Volle eigendom
Ligging
In woonwijk
Tuin
Achtertuin, voortuin en zijtuin
Achtertuin
65 m² (8,5m diep en 7,6m breed)

Voorzieningen in de buurt

Boodschappen1,0 km
Grote supermarkt1,0 km
Cafetaria1,0 km
Restaurant0,8 km
Huisarts1,1 km
Ziekenhuis5,6 km
Kinderdagverblijf0,4 km
BSO0,6 km
Alle voorzieningen in De Die

Binnenkijken bij Boompjesven 3 te Heemskerk

Meer meldingen in deze omgeving

112 melding
Vrijdag 5-12-2025 om 11:17
Hertogenven, 1963RG Heemskerk

112 melding
Vrijdag 5-12-2025 om 11:17
Hertogenven, 1963RG Heemskerk

112 melding
Donderdag 4-12-2025 om 16:59
Hertogenven, 1963RG Heemskerk

112 melding
Donderdag 4-12-2025 om 16:59
Hertogenven, 1963RG Heemskerk

112 melding
Donderdag 4-12-2025 om 07:35
Maereveldt, Heemskerk

112 melding
Woensdag 3-12-2025 om 14:29
Boompjesven, 1963SJ Heemskerk

112 melding
Woensdag 3-12-2025 om 11:02
Deukelven, 1963SP Heemskerk

112 melding
Dinsdag 2-12-2025 om 18:32
Deukelven, Heemskerk

Direct een e-mail ontvangen bij nieuwe meldingen in deze regio?

Meld je dan GRATIS aan voor de Oozo Alert service voor De Die

Instellen

Meer nieuws in De Die

Weten hoe eenvoudig het is om af te vallen? Zonder pillen en smeersels en zonder je in het zweet te werken!
Kijk op eenvoudig-afvallen.nl

© 2012 - 2025 OOZO.nl - info@oozo.nl - Gegevens verwijderen? | Disclaimer | Privacy statement