Woning Ingen Houszstraat 62 Heemskerk

Ingen Houszstraat 62, 1962GK Heemskerk

Ontvang updates voor Oosterzij

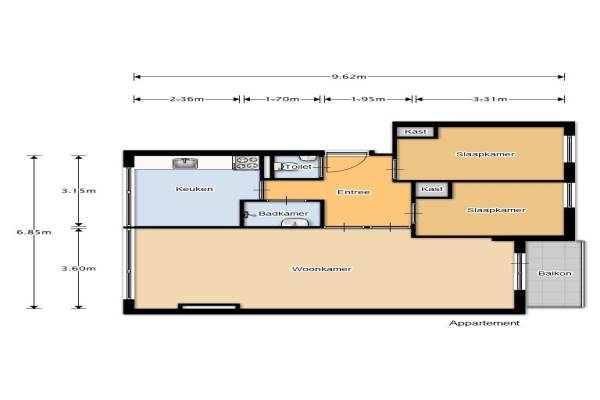
Het adres van deze woning uit 1960 is Ingen Houszstraat 62 te Heemskerk. Het pand heeft een oppervlakte van 62m² en heeft 3 kamers kamers waarvan 2 slaapkamers. De geschatte waarde van deze woning is € 130.000.

Bekijk alle woningen in Oosterzij

Gegevens van Portiekflat (appartement)

Bouwjaar
1960
Geschatte waarde
€ 130.000
Oppervlakte
62 m2
Inhoud
160 m3
Aantal kamers
3 kamers
Slaapkamers
2
Badkamers
1 badkamer en 1 apart toilet
Soort bouw
Bestaande bouw
Eigendomssituatie
Volle eigendom
Ligging
In woonwijk

Voorzieningen in de buurt

Boodschappen0,3 km
Grote supermarkt0,6 km
Cafetaria0,3 km
Restaurant0,3 km
Huisarts0,4 km
Ziekenhuis5,2 km
Kinderdagverblijf0,2 km
BSO0,6 km
Alle voorzieningen in Oosterzij

Binnenkijken bij Ingen Houszstraat 62 te Heemskerk

Meer meldingen in deze omgeving

112 melding
Dinsdag 30-12-2025 om 11:28
Griegstraat, 1962RK Heemskerk

112 melding
Vrijdag 26-12-2025 om 17:01
Schubertstraat, Heemskerk

112 melding
Donderdag 25-12-2025 om 22:10
Bachstraat, Heemskerk

112 melding
Maandag 22-12-2025 om 14:00
Ingen Houszstraat, 1962GE Heemskerk

112 melding
Maandag 22-12-2025 om 13:04
Griegstraat, 1962RK Heemskerk

112 melding
Maandag 22-12-2025 om 13:04
Griegstraat, 1962RK Heemskerk

112 melding
Maandag 22-12-2025 om 11:52
Mozartstraat, 1962AC Heemskerk

112 melding
Zondag 21-12-2025 om 20:27
Mozartstraat, 1962AC Heemskerk

Direct een e-mail ontvangen bij nieuwe meldingen in deze regio?

Meld je dan GRATIS aan voor de Oozo Alert service voor Oosterzij

Instellen

Meer nieuws in Oosterzij

Weten hoe eenvoudig het is om af te vallen? Zonder pillen en smeersels en zonder je in het zweet te werken!
Kijk op eenvoudig-afvallen.nl

© 2012 - 2026 OOZO.nl - info@oozo.nl - Gegevens verwijderen? | Disclaimer | Privacy statement