Woning W A Nijenhuisweg 18 Katlijk

W A Nijenhuisweg 18, 8455JV Katlijk

Ontvang updates voor Katlijk

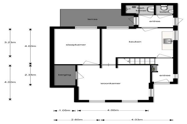
Het adres van deze woning uit 1921 is W A Nijenhuisweg 18 te Katlijk. Het pand heeft een oppervlakte van 72m² en een perceeloppervlakte van 1395m² en heeft 4 kamers kamers waarvan 3 slaapkamers. De geschatte waarde van deze woning is € 125.000.

Bekijk alle woningen in Katlijk

Gegevens van Eengezinswoning, vrijstaande woning

Bouwjaar
1921
Geschatte waarde
€ 125.000
Oppervlakte
72 m2
Inhoud
267 m3
Aantal kamers
4 kamers
Slaapkamers
3
Badkamers
1 badkamer en 1 apart toilet
Soort bouw
Bestaande bouw
Eigendomssituatie
Volle eigendom
Ligging
Landelijk gelegen
Tuin
Tuin rondom

Voorzieningen in de buurt

Boodschappen2,8 km
Grote supermarkt2,9 km
Cafetaria2,9 km
Restaurant2,1 km
Huisarts3,0 km
Ziekenhuis7,5 km
Kinderdagverblijf2,9 km
BSO1,8 km
Alle voorzieningen in Katlijk

Binnenkijken bij W A Nijenhuisweg 18 te Katlijk

Meer meldingen in deze omgeving






Binnenlands nieuws
Dinsdag 5-8-2025
Katlijk

Binnenlands nieuws
Vrijdag 25-7-2025
Katlijk


Direct een e-mail ontvangen bij nieuwe meldingen in deze regio?

Meld je dan GRATIS aan voor de Oozo Alert service voor Katlijk

Instellen

Meer nieuws in Katlijk

Weten hoe eenvoudig het is om af te vallen? Zonder pillen en smeersels en zonder je in het zweet te werken!
Kijk op eenvoudig-afvallen.nl

© 2012 - 2025 OOZO.nl - info@oozo.nl - Gegevens verwijderen? | Disclaimer | Privacy statement