Woning de Winkelman 2 Nieuwehorne

de Winkelman 2, 8414KC Nieuwehorne

Ontvang updates voor Nieuwehorne

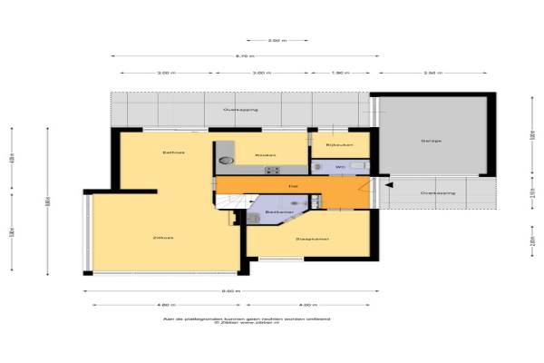
Het adres van deze woning uit 1995 is de Winkelman 2 te Nieuwehorne. Het pand heeft een oppervlakte van 115m² en een perceeloppervlakte van 800m² en heeft 4 kamers kamers waarvan 3 slaapkamers. De geschatte waarde van deze woning is € 425.000.

Bekijk alle woningen in Nieuwehorne

Gegevens van Eengezinswoning, vrijstaande woning

Bouwjaar
1995
Geschatte waarde
€ 425.000
Oppervlakte
115 m2
Inhoud
375 m3
Aantal kamers
4 kamers
Slaapkamers
3
Badkamers
2 badkamers en 1 apart toilet
Soort bouw
Bestaande bouw
Eigendomssituatie
Volle eigendom
Ligging
Aan rustige weg, in bosrijke omgeving en in woonwijk
Tuin
Achtertuin, voortuin en zijtuin
Achtertuin
500 m² (25,00 meter diep en 20,00 meter breed)

Voorzieningen in de buurt

Boodschappen0,7 km
Grote supermarkt0,7 km
Cafetaria0,7 km
Restaurant0,7 km
Huisarts0,5 km
Ziekenhuis10,6 km
Kinderdagverblijf0,4 km
BSO0,5 km
Alle voorzieningen in Nieuwehorne

Binnenkijken bij de Winkelman 2 te Nieuwehorne

Meer meldingen in deze omgeving

Binnenkijken bij
Dinsdag 11-11-2025
Buitenweg 34, 8414MA Nieuwehorne

Binnenlands nieuws
Dinsdag 11-11-2025
Nieuwehorne

112 melding
Donderdag 23-10-2025 om 09:54
Schoterlandseweg, Nieuwehorne

112 melding
Donderdag 23-10-2025 om 09:51
Schoterlandseweg, Nieuwehorne

Nieuw bedrijf
Oktober 2025
Schoterlandseweg 92A, 8414LZ Nieuwehorne

Binnenlands nieuws
Woensdag 8-10-2025
Nieuwehorne

112 melding
Donderdag 2-10-2025 om 13:52
Tjongervallei, 8414ME Nieuwehorne

112 melding
Donderdag 2-10-2025 om 13:29
Tjongervallei, 8414ME Nieuwehorne

Direct een e-mail ontvangen bij nieuwe meldingen in deze regio?

Meld je dan GRATIS aan voor de Oozo Alert service voor Nieuwehorne

Instellen

Meer nieuws in Nieuwehorne

Weten hoe eenvoudig het is om af te vallen? Zonder pillen en smeersels en zonder je in het zweet te werken!
Kijk op eenvoudig-afvallen.nl

© 2012 - 2025 OOZO.nl - info@oozo.nl - Gegevens verwijderen? | Disclaimer | Privacy statement