Woning Wilgenlaan 15 Heerhugowaard

Wilgenlaan 15, 1702JL Heerhugowaard

Ontvang updates voor Recreatiebuurt

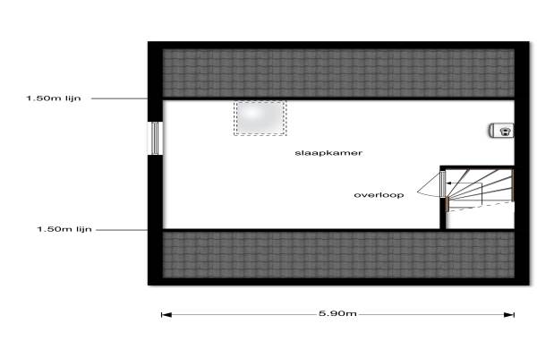
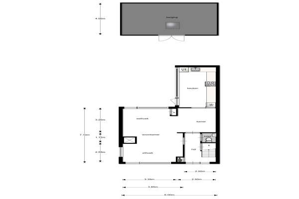
Het adres van deze woning uit 1969 is Wilgenlaan 15 te Heerhugowaard. Het pand heeft een oppervlakte van 114m² en een perceeloppervlakte van 168m² en heeft 5 kamers kamers waarvan 4 slaapkamers. De geschatte waarde van deze woning is € 209.000.

Bekijk alle woningen in Recreatiebuurt

Gegevens van Eengezinswoning, hoekwoning

Bouwjaar
1969
Geschatte waarde
€ 209.000
Oppervlakte
114 m2
Inhoud
372 m3
Aantal kamers
5 kamers
Slaapkamers
4
Badkamers
1 badkamer en 1 apart toilet
Soort bouw
Bestaande bouw
Eigendomssituatie
Volle eigendom
Ligging
Aan rustige weg, in woonwijk en beschutte ligging
Tuin
Achtertuin, voortuin en zijtuin
Achtertuin
66 m² (10,7m diep en 6,2m breed)

Voorzieningen in de buurt

Boodschappen0,4 km
Grote supermarkt0,4 km
Cafetaria0,3 km
Restaurant0,6 km
Huisarts0,3 km
Ziekenhuis2,2 km
Kinderdagverblijf0,4 km
BSO0,4 km
Alle voorzieningen in Recreatiebuurt

Binnenkijken bij Wilgenlaan 15 te Heerhugowaard

Meer meldingen in deze omgeving

112 melding
Vrijdag 5-12-2025 om 22:49
Hortensialaan, Heerhugowaard

112 melding
Vrijdag 5-12-2025 om 16:49
Sportlaan, 1701GN Heerhugowaard

Binnenkijken bij
Vrijdag 5-12-2025
Travalje 4, 1701HR Heerhugowaard

Nieuw bedrijf
December 2025
Parklaan 3, 1701GS Heerhugowaard

Nieuw bedrijf
December 2025
Spirealaan 54, 1702JH Heerhugowaard

112 melding
Donderdag 4-12-2025 om 14:52
Dennenlaan, Heerhugowaard

Binnenkijken bij
Donderdag 4-12-2025
Cederlaan 30, 1702KL Heerhugowaard

112 melding
Woensdag 3-12-2025 om 16:57
Travalje, Heerhugowaard

Direct een e-mail ontvangen bij nieuwe meldingen in deze regio?

Meld je dan GRATIS aan voor de Oozo Alert service voor Recreatiebuurt

Instellen

Meer nieuws in Recreatiebuurt

Weten hoe eenvoudig het is om af te vallen? Zonder pillen en smeersels en zonder je in het zweet te werken!
Kijk op eenvoudig-afvallen.nl

© 2012 - 2025 OOZO.nl - info@oozo.nl - Gegevens verwijderen? | Disclaimer | Privacy statement