Woning Rie Beisenherzland 36 Heerhugowaard

Rie Beisenherzland 36, 1705LL Heerhugowaard

Ontvang updates voor Zuidwijk 1

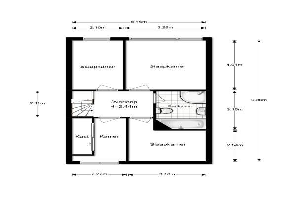
Het adres van deze woning uit 2001 is Rie Beisenherzland 36 te Heerhugowaard. Het pand heeft een oppervlakte van 113m² en een perceeloppervlakte van 175m² en heeft 5 kamers kamers waarvan 4 slaapkamers. De geschatte waarde van deze woning is € 285.000.

Bekijk alle woningen in Zuidwijk 1

Gegevens van Eengezinswoning, tussenwoning

Bouwjaar
2001
Geschatte waarde
€ 285.000
Oppervlakte
113 m2
Inhoud
373 m3
Aantal kamers
5 kamers
Slaapkamers
4
Badkamers
1 badkamer en 1 apart toilet
Soort bouw
Bestaande bouw
Eigendomssituatie
Volle eigendom
Ligging
Aan water, aan rustige weg en in woonwijk
Tuin
Achtertuin en voortuin
Achtertuin
50 m² (10m diep en 5m breed)

Voorzieningen in de buurt

Boodschappen0,8 km
Grote supermarkt0,6 km
Cafetaria0,6 km
Restaurant2,2 km
Huisarts0,6 km
Ziekenhuis3,0 km
Kinderdagverblijf0,7 km
BSO0,7 km
Alle voorzieningen in Zuidwijk 1

Binnenkijken bij Rie Beisenherzland 36 te Heerhugowaard

Meer meldingen in deze omgeving

112 melding
Maandag 10-11-2025 om 21:08
Heintje Davidstuin, 1705KJ Heerhugowaard

112 melding
Maandag 10-11-2025 om 17:10
Marie Jungiustuin, 1705KE Heerhugowaard

112 melding
Maandag 10-11-2025 om 15:14
Heintje Davidstuin, 1705KJ Heerhugowaard

112 melding
Maandag 10-11-2025 om 14:19
Lien Gisolfland, 1705LJ Heerhugowaard

112 melding
Maandag 10-11-2025 om 08:33
Ronnie Biermantuin, 1705LP Heerhugowaard

112 melding
Zaterdag 8-11-2025 om 11:14
Heintje Davidstuin, 1705KJ Heerhugowaard

112 melding
Zaterdag 8-11-2025 om 11:14
Heintje Davidstuin, 1705KJ Heerhugowaard

112 melding
Vrijdag 7-11-2025 om 13:22
Ronnie Biermantuin, 1705LP Heerhugowaard

Direct een e-mail ontvangen bij nieuwe meldingen in deze regio?

Meld je dan GRATIS aan voor de Oozo Alert service voor Zuidwijk 1

Instellen

Meer nieuws in Zuidwijk 1

Weten hoe eenvoudig het is om af te vallen? Zonder pillen en smeersels en zonder je in het zweet te werken!
Kijk op eenvoudig-afvallen.nl

© 2012 - 2025 OOZO.nl - info@oozo.nl - Gegevens verwijderen? | Disclaimer | Privacy statement