Woning Grubbelaan 19 Hoensbroek

Grubbelaan 19, 6431GD Hoensbroek

Ontvang updates voor Mariarade-Zuid

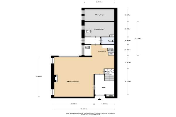
Het adres van deze woning uit 1932 is Grubbelaan 19 te Hoensbroek. Het pand heeft een oppervlakte van 153m² en een perceeloppervlakte van 594m² en heeft 6 kamers kamers waarvan 4 slaapkamers. De geschatte waarde van deze woning is € 195.000.

Bekijk alle woningen in Mariarade-Zuid

Gegevens van Eengezinswoning, halfvrijstaande woning

Bouwjaar
1932
Geschatte waarde
€ 195.000
Oppervlakte
153 m2
Inhoud
550 m3
Aantal kamers
6 kamers
Slaapkamers
4
Badkamers
1 badkamer en 2 aparte toiletten
Soort bouw
Bestaande bouw
Eigendomssituatie
Volle eigendom
Tuin
Achtertuin, voortuin en zijtuin
Achtertuin
440 m² (55m diep en 8m breed)

Voorzieningen in de buurt

Boodschappen0,3 km
Grote supermarkt0,7 km
Cafetaria0,3 km
Restaurant0,4 km
Huisarts0,6 km
Ziekenhuis4,2 km
Kinderdagverblijf0,6 km
BSO0,6 km
Alle voorzieningen in Mariarade-Zuid

Binnenkijken bij Grubbelaan 19 te Hoensbroek

Meer meldingen in deze omgeving

Nieuw bedrijf
April 2026
Voltalaan 61, 6431CK Hoensbroek

Nieuw bedrijf
April 2026
Akkerweide 220, 6431GZ Hoensbroek

Faillissement
Maandag 23-3-2026
Akerstraat-Noord 110A, 6431HP Hoensbroek

Faillissement
Woensdag 18-3-2026
Kastanjelaan 148, 6431GN Hoensbroek

Binnenkijken bij
Woensdag 18-3-2026
Akerstraat-Noord 122, 6431HP Hoensbroek

Binnenkijken bij
Dinsdag 17-3-2026
Akerstraat-Noord 124, 6431HP Hoensbroek

Binnenkijken bij
Zondag 15-3-2026
Voltalaan 4, 6431CL Hoensbroek

Binnenkijken bij
Donderdag 12-3-2026
Grubbelaan 49, 6431GE Hoensbroek

Direct een e-mail ontvangen bij nieuwe meldingen in deze regio?

Meld je dan GRATIS aan voor de Oozo Alert service voor Mariarade-Zuid

Instellen

Meer nieuws in Mariarade-Zuid

Weten hoe eenvoudig het is om af te vallen? Zonder pillen en smeersels en zonder je in het zweet te werken!
Kijk op eenvoudig-afvallen.nl

© 2012 - 2026 OOZO.nl - info@oozo.nl - Gegevens verwijderen? | Disclaimer | Privacy statement