Woning Beneluxlaan 76 Heerlen

Beneluxlaan 76, 6414GX Heerlen

Ontvang updates voor Vrieheide

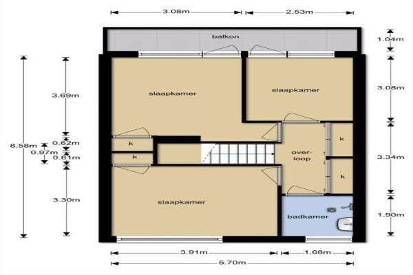
Het adres van deze woning uit 1962 is Beneluxlaan 76 te Heerlen. Het pand heeft een oppervlakte van 113m² en een perceeloppervlakte van 166m² en heeft 5 kamers kamers waarvan 4 slaapkamers. De geschatte waarde van deze woning is € 150.000.

Bekijk alle woningen in Vrieheide

Gegevens van Eengezinswoning, tussenwoning

Bouwjaar
1962
Geschatte waarde
€ 150.000
Oppervlakte
113 m2
Inhoud
481 m3
Aantal kamers
5 kamers
Slaapkamers
4
Badkamers
1 badkamer en 1 apart toilet
Soort bouw
Bestaande bouw
Eigendomssituatie
Volle eigendom
Ligging
Aan rustige weg en in woonwijk
Tuin
Achtertuin en voortuin
Achtertuin
73 m² (13,00 meter diep en 5,64 meter breed)

Voorzieningen in de buurt

Boodschappen0,8 km
Grote supermarkt0,5 km
Cafetaria0,4 km
Restaurant0,8 km
Huisarts0,5 km
Ziekenhuis3,1 km
Kinderdagverblijf0,4 km
BSO1,3 km
Alle voorzieningen in Vrieheide

Binnenkijken bij Beneluxlaan 76 te Heerlen

Meer meldingen in deze omgeving

Nieuw bedrijf
December 2025
Anjelierstraat 32, 6414EV Heerlen

Binnenkijken bij
Zaterdag 6-12-2025
Nachtegaalstraat 14, 6414TW Heerlen

Nieuw bedrijf
December 2025
Schumanstraat 16, 6414GD Heerlen

Binnenkijken bij
Woensdag 3-12-2025
Unescostraat 60A, 6414NX Heerlen

Binnenkijken bij
Vrijdag 28-11-2025
Schumanstraat 14, 6414GD Heerlen

Binnenkijken bij
Dinsdag 25-11-2025
Beneluxlaan 18, 6414GW Heerlen

112 melding
Vrijdag 21-11-2025 om 11:24
Zes Landenstraat, 6414GG Heerlen

Nieuw bedrijf
November 2025
Navolaan 112, 6414HJ Heerlen

Direct een e-mail ontvangen bij nieuwe meldingen in deze regio?

Meld je dan GRATIS aan voor de Oozo Alert service voor Vrieheide

Instellen

Meer nieuws in Vrieheide

Weten hoe eenvoudig het is om af te vallen? Zonder pillen en smeersels en zonder je in het zweet te werken!
Kijk op eenvoudig-afvallen.nl

© 2012 - 2025 OOZO.nl - info@oozo.nl - Gegevens verwijderen? | Disclaimer | Privacy statement