Woning Spoorlaan 5 Heiloo

Spoorlaan 5, 1851HK Heiloo

Ontvang updates voor Tuindorp

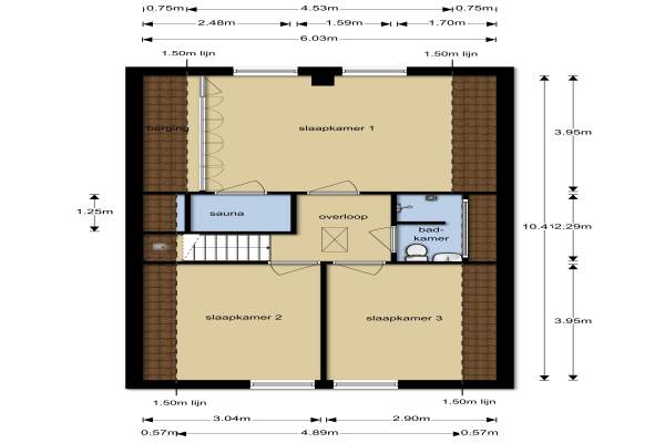
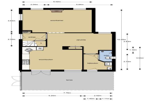
Het adres van deze woning uit 1959 is Spoorlaan 5 te Heiloo. Het pand heeft een oppervlakte van 122m² en een perceeloppervlakte van 382m² en heeft 4 kamers kamers waarvan 3 slaapkamers. De geschatte waarde van deze woning is € 450.000.

Bekijk alle woningen in Tuindorp

Gegevens van Eengezinswoning, vrijstaande woning

Bouwjaar
1959
Geschatte waarde
€ 450.000
Oppervlakte
122 m2
Inhoud
472 m3
Aantal kamers
4 kamers
Slaapkamers
3
Badkamers
1 badkamer en 1 apart toilet
Soort bouw
Bestaande bouw
Eigendomssituatie
Volle eigendom
Ligging
In woonwijk
Tuin
Achtertuin en voortuin
Achtertuin
168 m² (16m diep en 10,5m breed)

Voorzieningen in de buurt

Boodschappen0,4 km
Grote supermarkt0,4 km
Cafetaria0,4 km
Restaurant0,3 km
Huisarts1,4 km
Ziekenhuis3,3 km
Kinderdagverblijf0,4 km
BSO0,7 km
Alle voorzieningen in Tuindorp

Binnenkijken bij Spoorlaan 5 te Heiloo

Meer meldingen in deze omgeving

112 melding
Dinsdag 9-12-2025 om 12:15
Noordergeeststraat, 1851TG Heiloo

112 melding
Maandag 8-12-2025 om 10:56
Heerenweg, 1851KS Heiloo

112 melding
Maandag 8-12-2025 om 10:56
Heerenweg, 1851KS Heiloo

112 melding
Vrijdag 5-12-2025 om 11:18
't Loo, 1851HT Heiloo

112 melding
Donderdag 4-12-2025 om 15:23
't Loo, 1851HT Heiloo

112 melding
Donderdag 4-12-2025 om 15:23
't Loo, 1851HT Heiloo

Nieuw bedrijf
December 2025
Raadhuisweg 12, 1851JA Heiloo

112 melding
Dinsdag 2-12-2025 om 11:09
Torenlaan, 1851TA Heiloo

Direct een e-mail ontvangen bij nieuwe meldingen in deze regio?

Meld je dan GRATIS aan voor de Oozo Alert service voor Tuindorp

Instellen

Meer nieuws in Tuindorp

Weten hoe eenvoudig het is om af te vallen? Zonder pillen en smeersels en zonder je in het zweet te werken!
Kijk op eenvoudig-afvallen.nl

© 2012 - 2025 OOZO.nl - info@oozo.nl - Gegevens verwijderen? | Disclaimer | Privacy statement