Woning Heerenweg 95 Heiloo

Heerenweg 95, 1851KM Heiloo

Ontvang updates voor Tuindorp

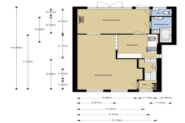
Het adres van deze woning uit 1930 is Heerenweg 95 te Heiloo. Het pand heeft een oppervlakte van 90m² en een perceeloppervlakte van 193m² en heeft 4 kamers kamers waarvan 3 slaapkamers. De geschatte waarde van deze woning is € 325.000.

Bekijk alle woningen in Tuindorp

Gegevens van Eengezinswoning, vrijstaande woning

Bouwjaar
1930
Geschatte waarde
€ 325.000
Oppervlakte
90 m2
Inhoud
333 m3
Aantal kamers
4 kamers
Slaapkamers
3
Badkamers
1 badkamer en 1 apart toilet
Soort bouw
Bestaande bouw
Eigendomssituatie
Volle eigendom
Ligging
Aan drukke weg en in centrum
Tuin
Achtertuin en voortuin
Achtertuin
70 m² (10m diep en 7m breed)

Voorzieningen in de buurt

Boodschappen0,4 km
Grote supermarkt0,4 km
Cafetaria0,4 km
Restaurant0,3 km
Huisarts1,4 km
Ziekenhuis3,3 km
Kinderdagverblijf0,4 km
BSO0,7 km
Alle voorzieningen in Tuindorp

Binnenkijken bij Heerenweg 95 te Heiloo

Meer meldingen in deze omgeving

112 melding
Zaterdag 21-3-2026 om 15:22
Schuine Hondsbosschelaan, 1851HP Heiloo

112 melding
Zaterdag 21-3-2026 om 15:22
Schuine Hondsbosschelaan, 1851HP Heiloo

112 melding
Woensdag 18-3-2026 om 16:54
De Gouwe Boom, Heiloo

112 melding
Woensdag 18-3-2026 om 16:51
Vinkenbaan, 1851TB Heiloo

112 melding
Woensdag 18-3-2026 om 14:33
Kerkelaan, 1851HG Heiloo

112 melding
Woensdag 18-3-2026 om 14:33
Kerkelaan, 1851HG Heiloo

112 melding
Dinsdag 17-3-2026 om 16:09
De Gouwe Boom, Heiloo

Binnenkijken bij
Zaterdag 14-3-2026
Kennemerstraatweg 119A, 1851BC Heiloo

Direct een e-mail ontvangen bij nieuwe meldingen in deze regio?

Meld je dan GRATIS aan voor de Oozo Alert service voor Tuindorp

Instellen

Meer nieuws in Tuindorp

Weten hoe eenvoudig het is om af te vallen? Zonder pillen en smeersels en zonder je in het zweet te werken!
Kijk op eenvoudig-afvallen.nl

© 2012 - 2026 OOZO.nl - info@oozo.nl - Gegevens verwijderen? | Disclaimer | Privacy statement