Woning Wentholtlaan 11 Heiloo

Wentholtlaan 11, 1852CH Heiloo

Ontvang updates voor Oud West

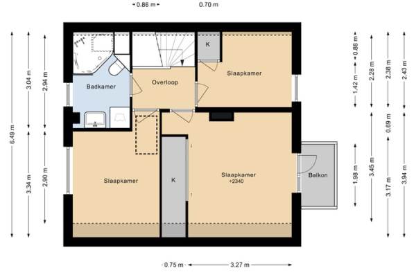
Het adres van deze woning uit 1950 is Wentholtlaan 11 te Heiloo. Het pand heeft een oppervlakte van 99m² en een perceeloppervlakte van 578m² en heeft 6 kamers kamers waarvan 4 slaapkamers. De geschatte waarde van deze woning is € 975.000.

Bekijk alle woningen in Oud West

Gegevens van Eengezinswoning, vrijstaande woning

Bouwjaar
1950
Geschatte waarde
€ 975.000
Oppervlakte
99 m2
Inhoud
407 m3
Aantal kamers
6 kamers
Slaapkamers
4
Badkamers
1 badkamer en 1 apart toilet
Soort bouw
Bestaande bouw
Eigendomssituatie
Volle eigendom
Ligging
Aan rustige weg, beschutte ligging, in woonwijk en vrij uitzicht
Tuin
Tuin rondom

Voorzieningen in de buurt

Boodschappen0,9 km
Grote supermarkt1,0 km
Cafetaria1,0 km
Restaurant0,8 km
Huisarts1,3 km
Ziekenhuis4,0 km
Kinderdagverblijf0,7 km
BSO1,1 km
Alle voorzieningen in Oud West

Binnenkijken bij Wentholtlaan 11 te Heiloo

Meer meldingen in deze omgeving

112 melding
Donderdag 27-11-2025 om 16:17
De Watergang, 1852RN Heiloo

112 melding
Donderdag 27-11-2025 om 16:00
De Blomhof, 1852RE Heiloo

112 melding
Donderdag 27-11-2025 om 11:34
Wentholtlaan, Heiloo

112 melding
Woensdag 26-11-2025 om 17:08
De Watergang, 1852RN Heiloo

112 melding
Woensdag 26-11-2025 om 17:08
De Watergang, 1852RN Heiloo

112 melding
Woensdag 26-11-2025 om 16:22
De Houtwal, 1852RP Heiloo

112 melding
Woensdag 26-11-2025 om 16:22
De Houtwal, 1852RP Heiloo

112 melding
Woensdag 26-11-2025 om 16:22
De Houtwal, 1852RP Heiloo

Direct een e-mail ontvangen bij nieuwe meldingen in deze regio?

Meld je dan GRATIS aan voor de Oozo Alert service voor Oud West

Instellen

Meer nieuws in Oud West

Weten hoe eenvoudig het is om af te vallen? Zonder pillen en smeersels en zonder je in het zweet te werken!
Kijk op eenvoudig-afvallen.nl

© 2012 - 2025 OOZO.nl - info@oozo.nl - Gegevens verwijderen? | Disclaimer | Privacy statement