Woning Wethouder Tomsonbos 55 Heiloo

Wethouder Tomsonbos 55, 1852HB Heiloo

Ontvang updates voor Oud West

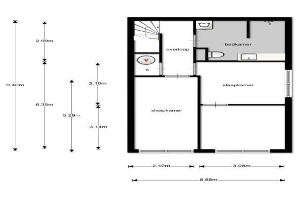
Het adres van deze woning uit 1999 is Wethouder Tomsonbos 55 te Heiloo. Het pand heeft een oppervlakte van 110m² en heeft 3 kamers kamers waarvan 2 slaapkamers. De geschatte waarde van deze woning is € 299.000.

Bekijk alle woningen in Oud West

Gegevens van Maisonnette

Bouwjaar
1999
Geschatte waarde
€ 299.000
Oppervlakte
110 m2
Inhoud
280 m3
Aantal kamers
3 kamers
Slaapkamers
2
Badkamers
1 badkamer en 1 apart toilet
Soort bouw
Bestaande bouw
Eigendomssituatie
Volle eigendom
Ligging
Aan bosrand en in woonwijk
Tuin
Achtertuin en zijtuin
Achtertuin
96 m² (8m diep en 12m breed)

Voorzieningen in de buurt

Boodschappen0,9 km
Grote supermarkt1,0 km
Cafetaria1,0 km
Restaurant0,8 km
Huisarts1,3 km
Ziekenhuis4,0 km
Kinderdagverblijf0,7 km
BSO1,1 km
Alle voorzieningen in Oud West

Binnenkijken bij Wethouder Tomsonbos 55 te Heiloo

Meer meldingen in deze omgeving

112 melding
Maandag 19-1-2026 om 12:34
Bayershoffweg, 1852BB Heiloo

112 melding
Maandag 19-1-2026 om 12:26
Van Merlenlaan, 1852CG Heiloo

112 melding
Maandag 19-1-2026 om 08:26
Het Maalwater, 1852RH Heiloo

112 melding
Zaterdag 17-1-2026 om 19:47
Wethouder Tomsonbos, Heiloo

112 melding
Zaterdag 17-1-2026 om 14:06
Spillaan, 1852BM Heiloo

112 melding
Vrijdag 16-1-2026 om 17:34
Bayershoffweg, 1852BB Heiloo

112 melding
Vrijdag 16-1-2026 om 17:34
Bayershoffweg, 1852BB Heiloo

112 melding
Vrijdag 16-1-2026 om 11:22
Achterzomer, 1852RT Heiloo

Direct een e-mail ontvangen bij nieuwe meldingen in deze regio?

Meld je dan GRATIS aan voor de Oozo Alert service voor Oud West

Instellen

Meer nieuws in Oud West

Weten hoe eenvoudig het is om af te vallen? Zonder pillen en smeersels en zonder je in het zweet te werken!
Kijk op eenvoudig-afvallen.nl

© 2012 - 2026 OOZO.nl - info@oozo.nl - Gegevens verwijderen? | Disclaimer | Privacy statement