Woning De Kistemaker 36 Heiloo

De Kistemaker 36, 1852GW Heiloo

Ontvang updates voor Akkerbuurt

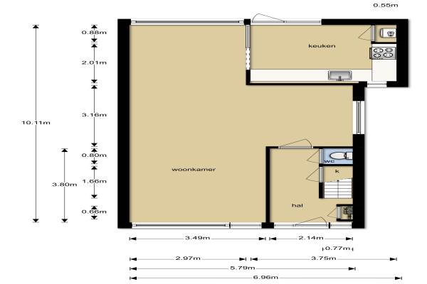
Het adres van deze woning uit 1965 is De Kistemaker 36 te Heiloo. Het pand heeft een oppervlakte van 124m² en een perceeloppervlakte van 457m² en heeft 5 kamers kamers waarvan 4 slaapkamers. De geschatte waarde van deze woning is € 300.000.

Bekijk alle woningen in Akkerbuurt

Gegevens van Eengezinswoning, hoekwoning

Bouwjaar
1965
Geschatte waarde
€ 300.000
Oppervlakte
124 m2
Inhoud
422 m3
Aantal kamers
5 kamers
Slaapkamers
4
Badkamers
1 badkamer en 1 apart toilet
Soort bouw
Bestaande bouw
Eigendomssituatie
Volle eigendom
Ligging
In woonwijk
Tuin
Achtertuin, voortuin en zijtuin
Achtertuin
71 m² (9,5m diep en 7,5m breed)

Voorzieningen in de buurt

Boodschappen0,6 km
Grote supermarkt0,8 km
Cafetaria0,8 km
Restaurant0,8 km
Huisarts0,4 km
Ziekenhuis3,9 km
Kinderdagverblijf0,5 km
BSO0,8 km
Alle voorzieningen in Akkerbuurt

Binnenkijken bij De Kistemaker 36 te Heiloo

Meer meldingen in deze omgeving

Nieuw bedrijf
Oktober 2025
Zeeweg 44, 1852CR Heiloo

112 melding
Zaterdag 4-10-2025 om 22:36
De Kloosterhof, 1852LA Heiloo

112 melding
Vrijdag 3-10-2025 om 12:46
Pastoor van Muijenweg, 1852EG Heiloo

112 melding
Vrijdag 3-10-2025 om 12:46
Pastoor van Muijenweg, 1852EG Heiloo

112 melding
Vrijdag 3-10-2025 om 12:31
Abraham du Bois-hof, Heiloo

112 melding
Vrijdag 3-10-2025 om 12:00
Zeeweg, 1852CR Heiloo

112 melding
Donderdag 2-10-2025 om 17:01
Hoog en Laag, Heiloo

112 melding
Donderdag 2-10-2025 om 14:59
De Elba, 1852GZ Heiloo

Direct een e-mail ontvangen bij nieuwe meldingen in deze regio?

Meld je dan GRATIS aan voor de Oozo Alert service voor Akkerbuurt

Instellen

Meer nieuws in Akkerbuurt

Weten hoe eenvoudig het is om af te vallen? Zonder pillen en smeersels en zonder je in het zweet te werken!
Kijk op eenvoudig-afvallen.nl

© 2012 - 2025 OOZO.nl - info@oozo.nl - Gegevens verwijderen? | Disclaimer | Privacy statement