Woning Kennemerstraatweg 257 Heiloo

Kennemerstraatweg 257, 1851NB Heiloo

Ontvang updates voor Oud Zuid

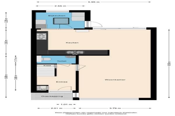
Het adres van deze woning uit 1969 is Kennemerstraatweg 257 te Heiloo. Het pand heeft een oppervlakte van 145m² en een perceeloppervlakte van 264m² en heeft 5 kamers kamers waarvan 4 slaapkamers. De geschatte waarde van deze woning is € 550.000.

Bekijk alle woningen in Oud Zuid

Gegevens van Eengezinswoning, hoekwoning

Bouwjaar
1969
Geschatte waarde
€ 550.000
Oppervlakte
145 m2
Inhoud
506 m3
Aantal kamers
5 kamers
Slaapkamers
4
Badkamers
1 badkamer en 1 apart toilet
Soort bouw
Bestaande bouw
Eigendomssituatie
Volle eigendom
Ligging
Aan drukke weg en in woonwijk
Tuin
Achtertuin en voortuin
Achtertuin
85 m² (12,00 meter diep en 8,00 meter breed)

Voorzieningen in de buurt

Boodschappen0,4 km
Grote supermarkt0,5 km
Cafetaria0,4 km
Restaurant0,5 km
Huisarts0,9 km
Ziekenhuis3,3 km
Kinderdagverblijf0,6 km
BSO0,6 km
Alle voorzieningen in Oud Zuid

Binnenkijken bij Kennemerstraatweg 257 te Heiloo

Meer meldingen in deze omgeving

112 melding
Donderdag 26-3-2026 om 10:36
Brasemcroftlaan, 1851VJ Heiloo

112 melding
Donderdag 26-3-2026 om 10:36
Brasemcroftlaan, 1851VJ Heiloo

112 melding
Dinsdag 24-3-2026 om 11:22
Heerenweg, 1851KW Heiloo

Nieuw bedrijf
Maart 2026
Werkendelslaan 37, 1851VB Heiloo

112 melding
Maandag 23-3-2026 om 08:40
Havercamplaan, 1851XD Heiloo

112 melding
Maandag 23-3-2026 om 08:40
Havercamplaan, 1851XD Heiloo

Binnenkijken bij
Zondag 22-3-2026
Stationsweg 76A, 1851LM Heiloo

112 melding
Zaterdag 21-3-2026 om 15:40
Zevenhuizerlaan, 1851MS Heiloo

Direct een e-mail ontvangen bij nieuwe meldingen in deze regio?

Meld je dan GRATIS aan voor de Oozo Alert service voor Oud Zuid

Instellen

Meer nieuws in Oud Zuid

Weten hoe eenvoudig het is om af te vallen? Zonder pillen en smeersels en zonder je in het zweet te werken!
Kijk op eenvoudig-afvallen.nl

© 2012 - 2026 OOZO.nl - info@oozo.nl - Gegevens verwijderen? | Disclaimer | Privacy statement