Woning Haesackerlaan 24 Heiloo

Haesackerlaan 24, 1851MN Heiloo

Ontvang updates voor Oud Zuid

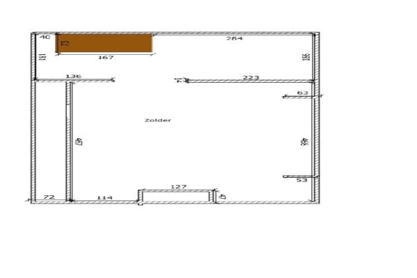
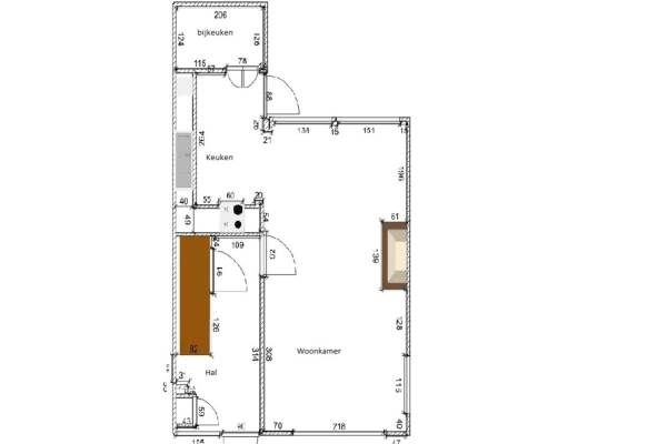
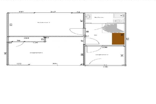
Het adres van deze woning uit 1958 is Haesackerlaan 24 te Heiloo. Het pand heeft een oppervlakte van 85m² en een perceeloppervlakte van 288m² en heeft 4 kamers kamers waarvan 3 slaapkamers. De geschatte waarde van deze woning is € 275.000.

Bekijk alle woningen in Oud Zuid

Gegevens van Eengezinswoning, hoekwoning

Bouwjaar
1958
Geschatte waarde
€ 275.000
Oppervlakte
85 m2
Inhoud
320 m3
Aantal kamers
4 kamers
Slaapkamers
3
Badkamers
1 badkamer en 1 apart toilet
Soort bouw
Bestaande bouw
Eigendomssituatie
Volle eigendom
Ligging
Aan rustige weg en in woonwijk
Tuin
Achtertuin, voortuin en zijtuin
Achtertuin
120 m² (15m diep en 8m breed)

Voorzieningen in de buurt

Boodschappen0,4 km
Grote supermarkt0,5 km
Cafetaria0,4 km
Restaurant0,5 km
Huisarts0,9 km
Ziekenhuis3,3 km
Kinderdagverblijf0,6 km
BSO0,6 km
Alle voorzieningen in Oud Zuid

Binnenkijken bij Haesackerlaan 24 te Heiloo

Meer meldingen in deze omgeving

112 melding
Donderdag 23-10-2025 om 23:47
Werkendelslaan, Heiloo

112 melding
Donderdag 23-10-2025 om 23:38
Stationsweg, 1851LJ Heiloo

112 melding
Donderdag 23-10-2025 om 14:32
Stationsplein, 1851LN Heiloo

112 melding
Dinsdag 21-10-2025 om 16:49
Bestevaerslaan, 1851VK Heiloo

112 melding
Dinsdag 21-10-2025 om 16:47
Stationsweg, 1851LJ Heiloo

112 melding
Dinsdag 21-10-2025 om 16:46
Werkendelslaan, Heiloo

112 melding
Dinsdag 21-10-2025 om 16:45
Keldercroftlaan, 1851VH Heiloo

112 melding
Dinsdag 21-10-2025 om 16:43
Butterlaan, 1851MJ Heiloo

Direct een e-mail ontvangen bij nieuwe meldingen in deze regio?

Meld je dan GRATIS aan voor de Oozo Alert service voor Oud Zuid

Instellen

Meer nieuws in Oud Zuid

Weten hoe eenvoudig het is om af te vallen? Zonder pillen en smeersels en zonder je in het zweet te werken!
Kijk op eenvoudig-afvallen.nl

© 2012 - 2025 OOZO.nl - info@oozo.nl - Gegevens verwijderen? | Disclaimer | Privacy statement