Woning Heerenweg 202 Heiloo

Heerenweg 202, 1851KX Heiloo

Ontvang updates voor Oud Zuid

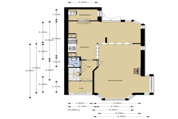
Het adres van deze woning uit 1935 is Heerenweg 202 te Heiloo. Het pand heeft een oppervlakte van 122m² en een perceeloppervlakte van 318m² en heeft 4 kamers kamers waarvan 3 slaapkamers. De geschatte waarde van deze woning is € 425.000.

Bekijk alle woningen in Oud Zuid

Gegevens van Herenhuis, 2-onder-1-kapwoning

Bouwjaar
1935
Geschatte waarde
€ 425.000
Oppervlakte
122 m2
Inhoud
435 m3
Aantal kamers
4 kamers
Slaapkamers
3
Badkamers
1 badkamer en 1 apart toilet
Soort bouw
Bestaande bouw
Eigendomssituatie
Volle eigendom
Ligging
In woonwijk
Tuin
Achtertuin, voortuin en zijtuin
Achtertuin
149 m² (17,5m diep en 8,5m breed)

Voorzieningen in de buurt

Boodschappen0,4 km
Grote supermarkt0,5 km
Cafetaria0,4 km
Restaurant0,5 km
Huisarts0,9 km
Ziekenhuis3,3 km
Kinderdagverblijf0,6 km
BSO0,6 km
Alle voorzieningen in Oud Zuid

Binnenkijken bij Heerenweg 202 te Heiloo

Meer meldingen in deze omgeving

Nieuw bedrijf
Oktober 2025
Stationsplein 24, 1851LN Heiloo

112 melding
Woensdag 15-10-2025 om 08:28
Stationsweg, 1851LL Heiloo

112 melding
Maandag 13-10-2025 om 12:09
Zevenhuizerlaan, 1851MR Heiloo

112 melding
Maandag 13-10-2025 om 12:09
Zevenhuizerlaan, 1851MR Heiloo

112 melding
Maandag 13-10-2025 om 08:34
Zeekamplaan, 1851XG Heiloo

112 melding
Maandag 13-10-2025 om 08:10
Zevenhuizerlaan, 1851MS Heiloo

112 melding
Maandag 13-10-2025 om 07:49
Keldercroftlaan, 1851VG Heiloo

112 melding
Vrijdag 10-10-2025 om 22:49
Zeekamplaan, 1851XG Heiloo

Direct een e-mail ontvangen bij nieuwe meldingen in deze regio?

Meld je dan GRATIS aan voor de Oozo Alert service voor Oud Zuid

Instellen

Meer nieuws in Oud Zuid

Weten hoe eenvoudig het is om af te vallen? Zonder pillen en smeersels en zonder je in het zweet te werken!
Kijk op eenvoudig-afvallen.nl

© 2012 - 2025 OOZO.nl - info@oozo.nl - Gegevens verwijderen? | Disclaimer | Privacy statement