Woning Tuinenhof 3 Heiloo

Tuinenhof 3, 1851ZR Heiloo

Ontvang updates voor Zuid Oost

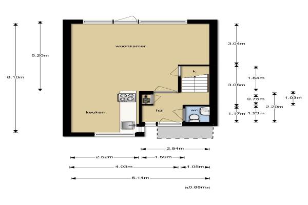
Het adres van deze woning uit 1995 is Tuinenhof 3 te Heiloo. Het pand heeft een oppervlakte van 98m² en een perceeloppervlakte van 143m² en heeft 5 kamers kamers waarvan 4 slaapkamers. De geschatte waarde van deze woning is € 265.000.

Bekijk alle woningen in Zuid Oost

Gegevens van Eengezinswoning, tussenwoning

Bouwjaar
1995
Geschatte waarde
€ 265.000
Oppervlakte
98 m2
Inhoud
317 m3
Aantal kamers
5 kamers
Slaapkamers
4
Badkamers
1 badkamer en 1 apart toilet
Soort bouw
Bestaande bouw
Eigendomssituatie
Volle eigendom
Ligging
In woonwijk
Tuin
Achtertuin en voortuin
Achtertuin
58 m² (11,5m diep en 5m breed)

Voorzieningen in de buurt

Boodschappen1,2 km
Grote supermarkt0,5 km
Cafetaria0,9 km
Restaurant1,3 km
Huisarts0,6 km
Ziekenhuis2,9 km
Kinderdagverblijf0,5 km
BSO0,5 km
Alle voorzieningen in Zuid Oost

Binnenkijken bij Tuinenhof 3 te Heiloo

Meer meldingen in deze omgeving

112 melding
Vrijdag 28-11-2025 om 12:22
Het Zandstuk, Heiloo

112 melding
Vrijdag 28-11-2025 om 10:02
Vijverlaan, 1851ZV Heiloo

112 melding
Vrijdag 28-11-2025 om 10:02
Vijverlaan, 1851ZV Heiloo

112 melding
Donderdag 27-11-2025 om 16:20
De Waard, 1851RH Heiloo

112 melding
Donderdag 27-11-2025 om 16:20
De Waard, 1851RH Heiloo

112 melding
Donderdag 27-11-2025 om 16:10
De Waard, 1851RA Heiloo

112 melding
Donderdag 27-11-2025 om 12:08
Oostersingel, 1851ZW Heiloo

112 melding
Donderdag 27-11-2025 om 11:18
Vijverlaan, 1851ZV Heiloo

Direct een e-mail ontvangen bij nieuwe meldingen in deze regio?

Meld je dan GRATIS aan voor de Oozo Alert service voor Zuid Oost

Instellen

Meer nieuws in Zuid Oost

Weten hoe eenvoudig het is om af te vallen? Zonder pillen en smeersels en zonder je in het zweet te werken!
Kijk op eenvoudig-afvallen.nl

© 2012 - 2025 OOZO.nl - info@oozo.nl - Gegevens verwijderen? | Disclaimer | Privacy statement