Woning van Speykstraat 7 Nijverdal

van Speykstraat 7, 7441HV Nijverdal

Ontvang updates voor Zeeheldenwijk

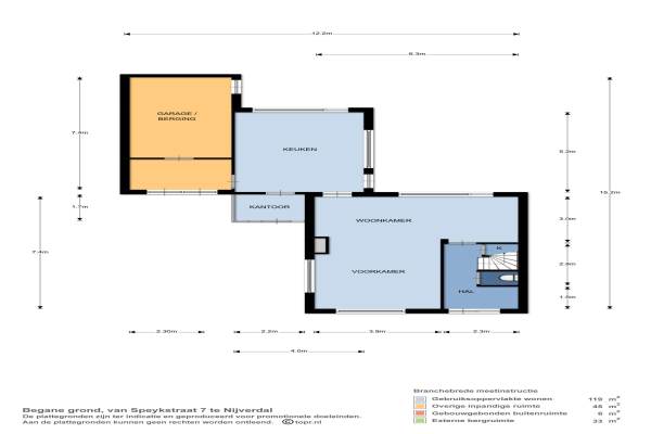
Het adres van deze woning uit 1959 is van Speykstraat 7 te Nijverdal. Het pand heeft een oppervlakte van 119m² en een perceeloppervlakte van 428m² en heeft 7 kamers kamers waarvan 4 slaapkamers. De geschatte waarde van deze woning is € 419.000.

Bekijk alle woningen in Zeeheldenwijk

Gegevens van Eengezinswoning, halfvrijstaande woning

Bouwjaar
1959
Geschatte waarde
€ 419.000
Oppervlakte
119 m2
Inhoud
420 m3
Aantal kamers
7 kamers
Slaapkamers
4
Badkamers
1 badkamer en 1 apart toilet
Soort bouw
Bestaande bouw
Eigendomssituatie
Volle eigendom
Ligging
Aan rustige weg, in woonwijk en in bosrijke omgeving
Tuin
Achtertuin, voortuin en zonneterras
Achtertuin
153 m² (17m diep en 9m breed)

Voorzieningen in de buurt

Boodschappen0,9 km
Grote supermarkt0,9 km
Cafetaria0,7 km
Restaurant0,8 km
Huisarts1,9 km
Ziekenhuis10,2 km
Kinderdagverblijf0,3 km
BSO0,3 km
Alle voorzieningen in Zeeheldenwijk

Binnenkijken bij van Speykstraat 7 te Nijverdal

Meer meldingen in deze omgeving

Binnenkijken bij
Woensdag 24-12-2025
van Wassenaar van Obdamstraat 7, 7441HS Nijverdal

Binnenkijken bij
Dinsdag 11-11-2025
Jan van Galenlaan 3, 7441JC Nijverdal

Binnenkijken bij
Maandag 22-9-2025
Cornelis Evertsenlaan 7, 7441JB Nijverdal

Binnenkijken bij
Vrijdag 19-9-2025
de Joncheerelaan 69, 7441HC Nijverdal

Nieuw bedrijf
September 2025
Trompweg 7, 7441HN Nijverdal

Binnenkijken bij
Zaterdag 28-6-2025
van Speykstraat 14, 7441HV Nijverdal

Binnenkijken bij
Dinsdag 17-6-2025
Witte de Withlaan 9, 7441HZ Nijverdal

112 melding
Zondag 18-5-2025 om 18:27
Piet Heinweg, 7441GZ Nijverdal

Direct een e-mail ontvangen bij nieuwe meldingen in deze regio?

Meld je dan GRATIS aan voor de Oozo Alert service voor Zeeheldenwijk

Instellen

Meer nieuws in Zeeheldenwijk

Weten hoe eenvoudig het is om af te vallen? Zonder pillen en smeersels en zonder je in het zweet te werken!
Kijk op eenvoudig-afvallen.nl

© 2012 - 2026 OOZO.nl - info@oozo.nl - Gegevens verwijderen? | Disclaimer | Privacy statement