Woning Korenbloemstraat 6 Nijverdal

Korenbloemstraat 6, 7442LD Nijverdal

Ontvang updates voor Bloemen-Schilderswijk

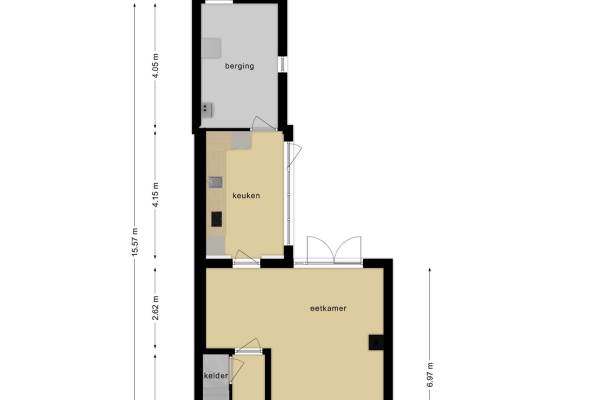
Het adres van deze woning uit 1952 is Korenbloemstraat 6 te Nijverdal. Het pand heeft een oppervlakte van 93m² en een perceeloppervlakte van 176m² en heeft 5 kamers kamers waarvan 4 slaapkamers. De geschatte waarde van deze woning is € 250.000.

Bekijk alle woningen in Bloemen-Schilderswijk

Gegevens van Eengezinswoning, tussenwoning

Bouwjaar
1952
Geschatte waarde
€ 250.000
Oppervlakte
93 m2
Inhoud
403 m3
Aantal kamers
5 kamers
Slaapkamers
4
Badkamers
1 badkamer en 2 aparte toiletten
Soort bouw
Bestaande bouw
Eigendomssituatie
Volle eigendom
Ligging
Aan rustige weg, in bosrijke omgeving, in woonwijk en vrij uitzicht
Tuin
Achtertuin en voortuin
Achtertuin
69 m² (12,5 meter diep en 5,5 meter breed)

Voorzieningen in de buurt

Boodschappen0,4 km
Grote supermarkt0,6 km
Cafetaria0,4 km
Restaurant0,4 km
Huisarts0,3 km
Ziekenhuis8,6 km
Kinderdagverblijf0,5 km
BSO0,5 km
Alle voorzieningen in Bloemen-Schilderswijk

Binnenkijken bij Korenbloemstraat 6 te Nijverdal

Meer meldingen in deze omgeving

Binnenkijken bij
Dinsdag 11-11-2025
Dahliastraat 19, 7442LA Nijverdal

Binnenkijken bij
Dinsdag 11-11-2025
Banninksweg 11, 7442KA Nijverdal

Binnenkijken bij
Dinsdag 11-11-2025
Zonnebloemstraat 19, 7442LK Nijverdal

Binnenkijken bij
Woensdag 29-10-2025
Frans Halsstraat 11, 7442KL Nijverdal

Binnenkijken bij
Zondag 12-10-2025
Nijkerkendijk 6, 7442LS Nijverdal

Binnenkijken bij
Woensdag 1-10-2025
Papaverstraat 27, 7442LG Nijverdal

Binnenkijken bij
Vrijdag 19-9-2025
Jan Steenstraat 33, 7442KD Nijverdal

Nieuw bedrijf
September 2025
Paulus Potterstraat 30, 7442KN Nijverdal

Direct een e-mail ontvangen bij nieuwe meldingen in deze regio?

Meld je dan GRATIS aan voor de Oozo Alert service voor Bloemen-Schilderswijk

Instellen

Meer nieuws in Bloemen-Schilderswijk

Weten hoe eenvoudig het is om af te vallen? Zonder pillen en smeersels en zonder je in het zweet te werken!
Kijk op eenvoudig-afvallen.nl

© 2012 - 2025 OOZO.nl - info@oozo.nl - Gegevens verwijderen? | Disclaimer | Privacy statement