Woning Uniceflaan 8 Hellevoetsluis

Uniceflaan 8, 3223PA Hellevoetsluis

Ontvang updates voor Wagenzicht

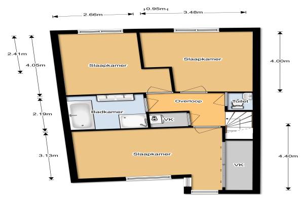
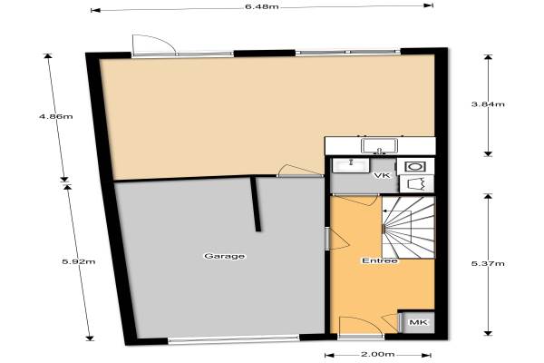
Het adres van deze woning uit 1999 is Uniceflaan 8 te Hellevoetsluis. Het pand heeft een oppervlakte van 162m² en een perceeloppervlakte van 183m² en heeft 5 kamers kamers waarvan 4 slaapkamers. De geschatte waarde van deze woning is € 347.500.

Bekijk alle woningen in Wagenzicht

Gegevens van Eengezinswoning, tussenwoning (drive-in woning)

Bouwjaar
1999
Geschatte waarde
€ 347.500
Oppervlakte
162 m2
Inhoud
555 m3
Aantal kamers
5 kamers
Slaapkamers
4
Badkamers
1 badkamer en 2 aparte toiletten
Soort bouw
Bestaande bouw
Eigendomssituatie
Volle eigendom
Tuin
Achtertuin en voortuin
Achtertuin
69 m² (9,5m diep en 7,26m breed)

Voorzieningen in de buurt

Boodschappen1,2 km
Grote supermarkt1,2 km
Cafetaria1,2 km
Restaurant1,2 km
Huisarts0,4 km
Ziekenhuis2,3 km
Kinderdagverblijf0,8 km
BSO0,8 km
Alle voorzieningen in Wagenzicht

Binnenkijken bij Uniceflaan 8 te Hellevoetsluis

Meer meldingen in deze omgeving

Nieuw bedrijf
November 2025
Marcandostraat 60, 3223PC Hellevoetsluis

Binnenkijken bij
Vrijdag 14-11-2025
Legatostraat 7, 3223PM Hellevoetsluis

112 melding
Donderdag 13-11-2025 om 23:47
Octaafstraat, 3223PE Hellevoetsluis

112 melding
Woensdag 12-11-2025 om 03:39
Etudestraat, 3223PP Hellevoetsluis

112 melding
Dinsdag 11-11-2025 om 21:11
Etudestraat, 3223PP Hellevoetsluis

112 melding
Vrijdag 31-10-2025 om 22:56
Legatostraat, 3223PM Hellevoetsluis

112 melding
Vrijdag 31-10-2025 om 22:56
Legatostraat, 3223PM Hellevoetsluis

112 melding
Donderdag 30-10-2025 om 03:30
Rondostraat, 3223PB Hellevoetsluis

Direct een e-mail ontvangen bij nieuwe meldingen in deze regio?

Meld je dan GRATIS aan voor de Oozo Alert service voor Wagenzicht

Instellen

Meer nieuws in Wagenzicht

Weten hoe eenvoudig het is om af te vallen? Zonder pillen en smeersels en zonder je in het zweet te werken!
Kijk op eenvoudig-afvallen.nl

© 2012 - 2025 OOZO.nl - info@oozo.nl - Gegevens verwijderen? | Disclaimer | Privacy statement